Ley Outre

Crissier

Le site de Ley Outre Est, bien desservi par de grands axes routiers, constitue un site stratégique de l'est de Crissier. Proche de zones agricoles et de cordons forestiers, le site présente des caractéristiques paysagères fortes que le projet propose de préserver et renforcer.

Le quartier résidentiel signé CCHE est composé de 5 bâtiments implantés dans un tapis végétal et propose une échelle intermédiaire sous forme d'un habitat multifamilial. Réagissant à la pente, les volumes bâtis profitent d'un décalage de demi-niveau afin d'optimiser les surfaces habitables du projet tout en respectant les exigences du Plan d'affectation.

L'implantation des volumes en quinconce assure la porosité du quartier et offre le maximum de dégagement pour les logements. Les sous-sols du projet sont réduits au minimum de manière à préserver le terrain en pleine terre. Les espaces extérieurs offrent divers usages aux résidents en favorisant des rencontres intergénérationnelles.

La rationalité des circulations et l'efficacité des typologies permettent une disposition où tous les appartements profitent d'une double ou triple orientation. Les séjours des logements s'articulent autour d'un espace Joker permettant aux résidents de s'approprier leur lieu de vie.

Ce nouveau quartier mise sur la mobilité douce au sein d’un nouveau parc semé et arboré. Ces nouveaux aménagements sont caractérisés essentiellement par 3 entités paysagères. D’une part, la place d’agrément centrale avec son arbre à grand développement. Celle-ci est ponctuée par un mobilier confortable et adapté réparti sur une surface minérale et sur une surface végétale. Deuxièmement la place de jeux, espace consacré aux enfants, est composée d’un revêtement en copeaux de bois et de jeux thématiques en bois local. Cet espace s’inscrit dans le contexte forestier existant. Et finalement la gestion des eaux à ciel ouvert, qui se traduit par l’aménagement de trois bassins de rétention semés et recouverts par une végétation herbacée de type humide.

Année

2025

Développé par

CCHE Lausanne SA

Mention

1er prix

Maître de l'ouvrage

Client privé

Programme

Mixte d'habitations et d'activités

Surface (SBP)

28'800 m2

Volume (SIA)

82'800 m3

Affectation

Mixte

Superficie

Parcelle 19'740 m2

Densité

IUS 0.93

Signalétique

CCHE Design

Réalisation

CCHE Lausanne SA

Urbanisme et Architecture de CCHE pour le concours Ley Outre Crissier Suisse
Architecture de CCHE pour le Quartier Ley Outre à Crissier Suisse
Architecture de CCHE pour le Quartier Ley Outre à Crissier Suisse
Architecture de CCHE pour le Quartier Ley Outre à Crissier Suisse

L'expression architecturale du projet est marquée par les éléments horizontaux. Leur épaisseur varie afin de garantir l'intimité des chambres tout en ouvrant les espaces de vie vers l'extérieur. Les façades minérales et leurs finitions métalliques assurent la durabilité des bâtiments et nécessitent un minimum d'entretien.

Architecture de CCHE pour le Quartier Ley Outre à Crissier Suisse
Architecture de CCHE pour le Quartier Ley Outre à Crissier Suisse
Architecture de CCHE pour le Quartier Ley Outre à Crissier Suisse
Architecture de CCHE pour le Quartier Ley Outre à Crissier Suisse
Architecture de CCHE pour le Quartier Ley Outre à Crissier Suisse
Architecture de CCHE pour le Quartier Ley Outre à Crissier Suisse
Architecture de CCHE pour le Quartier Ley Outre à Crissier Suisse
Architecture de CCHE pour le Quartier Ley Outre à Crissier Suisse
Architecture de CCHE pour le Quartier Ley Outre à Crissier Suisse
Architecture de CCHE pour le Quartier Ley Outre à Crissier Suisse
Architecture de CCHE pour le Quartier Ley Outre à Crissier Suisse
Architecture de CCHE pour le Quartier Ley Outre à Crissier Suisse
Architecture de CCHE pour le Quartier Ley Outre à Crissier Suisse

Signalétique

Notre équipe a pensé et réalisé la signalétique globale intérieure et extérieure du quartier, l'objectif a été de proposer un ensemble qui s'intègre à la lecture architecturale avec l'utilisation de matériaux naturels.

Les chiffres sur les façades extérieures ont été réalisés par un traitement à l’acide avec des pochoirs, la transformation avec les caractéristiques d’une typographie dessinée sur-mesure, ont permis une application au chablon pour une découpe nette et une lecture esthétique.

Signalétique de CCHE pour le Quartier Ley Outre à Crissier Suisse
Signalétique de CCHE pour le Quartier Ley Outre à Crissier Suisse
Architecture de CCHE pour le Quartier Ley Outre à Crissier Suisse
Architecture de CCHE pour le Quartier Ley Outre à Crissier Suisse
Architecture de CCHE pour le Quartier Ley Outre à Crissier Suisse

Images 3D et plans du projet

Urbanisme et Architecture de CCHE pour le concours Ley Outre Crissier Suisse
Urbanisme et Architecture de CCHE pour le concours Ley Outre Crissier Suisse
Urbanisme et Architecture de CCHE pour le concours Ley Outre Crissier Suisse
Urbanisme et Architecture de CCHE pour le concours Ley Outre Crissier Suisse
Urbanisme et Architecture de CCHE pour le concours Ley Outre Crissier Suisse
Urbanisme et Architecture de CCHE pour le concours Ley Outre Crissier Suisse
Urbanisme et Architecture de CCHE pour le concours Ley Outre Crissier Suisse

Plan de situation, Coupes longitudinales

Urbanisme et Architecture de CCHE pour le concours Ley Outre Crissier Suisse
Urbanisme et Architecture de CCHE pour le concours Ley Outre Crissier Suisse
Urbanisme et Architecture de CCHE pour le concours Ley Outre Crissier Suisse

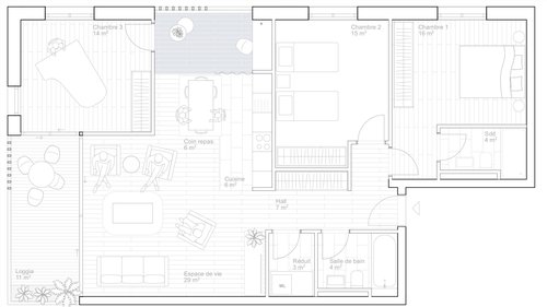
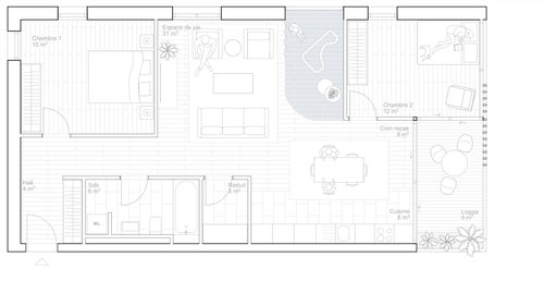
Plans étages types: Module A1 - A3, 3.5 pièces type, 4.5 pièce type

Retour aux projets