Ley Outre

Crissier

Der Standort Ley Outre Ost, der gut an Hauptverkehrsstraßen angeschlossen ist, ist ein strategisch wichtiger Standort östlich von Crissier. In der Nähe von landwirtschaftlichen Gebieten und Waldgürteln weist das Gelände starke Landschaftsmerkmale auf, die durch das Projekt erhalten und aufgewertet werden sollen.

Das Wohnviertel, signiert von CCHE, besteht aus 5 Gebäuden, die in einen grünen Teppich gefasst sind und bietet einen Zwischenmaßstab in Form eines Mehrfamilien-Wohnraums. Wegen der Hanglage nutzen die Bauvolumen einen Versatz von einer halben Ebene, um die Wohnflächen des Projekts unter Beachtung der Anforderungen des Flächennutzungsplans zu optimieren.

Die versetzte Anordnung der Volumen gewährleistet die Porosität des Viertels und bietet maximalen Freiraum für die Wohnhäuser. Die Untergeschosse des Projekts werden auf ein Minimum beschränkt, um ebenerdiges Gelände zu erhalten. Die Außenbereiche bieten den Bewohnern vielfältige Nutzungsmöglichkeiten, indem sie die Begegnung zwischen den Generationen fördern.

Die Rationalität der Zirkulation und die Effizienz der Typologien erlauben eine Anordnung, bei der alle Wohnungen eine doppelte oder dreifache Ausrichtung haben. Die Wohnräume der Wohnungen sind um einen „Joker“-Raum gruppiert, der es den Bewohnern ermöglicht, sich ihren Lebensraum anzueignen.

Dieser neue Stadtteil setzt auf sanfte Mobilität innerhalb eines neuen, eingesäten und mit Bäumen bepflanzten Parks. Diese neuen Anlagen werden im Wesentlichen durch drei landschaftliche Einheiten charakterisiert. Zum einen gibt es einen zentralen Platz mit einem groß gewachsenen Baum. Dieser wird von bequemen und angepassten Möbeln unterbrochen, die auf einer mineralischen und einer pflanzlichen Fläche verteilt sind. Zum anderen der Spielplatz, der den Kindern gewidmet ist und aus einem Belag aus Holzspänen und thematischen Spielgeräten aus lokalem Holz besteht. Dieser Bereich fügt sich in den bestehenden Waldkontext ein. Und schließlich das offene Wassermanagement, das sich in der Anlage von drei Rückhaltebecken äußert, die eingesät und mit einer Krautvegetation feuchter Art bedeckt sind.

Jahr

2025

Entwickelt von

CCHE Lausanne SA

Erwähnung

1.Preis

Bauherr

Privatkunde

Programm

Mischung aus Wohnen und Aktivitäten

Geschossfläche (BGF)

28.800 qm

Volumen (SIA)

82.800 m3

Bauzone

Mix

Geschossfläche

Grundstück 19.740 qm

Dichte

IUS 0.93

Beschilderung

CCHE Design

Realisierung

CCHE Lausanne SA

Urbanisme et Architecture de CCHE pour le concours Ley Outre Crissier Suisse
Architecture de CCHE pour le Quartier Ley Outre à Crissier Suisse
Architecture de CCHE pour le Quartier Ley Outre à Crissier Suisse
Architecture de CCHE pour le Quartier Ley Outre à Crissier Suisse

Der architektonische Ausdruck des Projekts ist durch horizontale Elemente gekennzeichnet. Ihre Dicke variiert, um die Intimität der Räume zu gewährleisten und gleichzeitig die Wohnräume nach außen hin zu öffnen. Die mineralischen Fassaden und ihre metallischen Oberflächen gewährleisten die Dauerhaftigkeit der Gebäude und erfordern ein Minimum an Wartung.

Architecture de CCHE pour le Quartier Ley Outre à Crissier Suisse
Architecture de CCHE pour le Quartier Ley Outre à Crissier Suisse
Architecture de CCHE pour le Quartier Ley Outre à Crissier Suisse
Architecture de CCHE pour le Quartier Ley Outre à Crissier Suisse
Architecture de CCHE pour le Quartier Ley Outre à Crissier Suisse
Architecture de CCHE pour le Quartier Ley Outre à Crissier Suisse
Architecture de CCHE pour le Quartier Ley Outre à Crissier Suisse
Architecture de CCHE pour le Quartier Ley Outre à Crissier Suisse
Architecture de CCHE pour le Quartier Ley Outre à Crissier Suisse
Architecture de CCHE pour le Quartier Ley Outre à Crissier Suisse
Architecture de CCHE pour le Quartier Ley Outre à Crissier Suisse
Architecture de CCHE pour le Quartier Ley Outre à Crissier Suisse
Architecture de CCHE pour le Quartier Ley Outre à Crissier Suisse

Beschilderung

Unser Team hat die gesamte Beschilderung des Viertels entworfen und umgesetzt. Das Ziel war es, ein Gesamtkonzept zu entwickeln, das sich durch die Verwendung natürlicher Materialien in die architektonische Gestaltung einfügt.

Die Zahlen an den Außenfassaden wurden durch eine Säurebehandlung mit Schablonen hergestellt. Die Umwandlung mit den Merkmalen einer Schablonentypografie ermöglichte eine Schablonenanwendung für einen sauberen Schnitt und eine ästhetische Lesbarkeit.

Signalétique de CCHE pour le Quartier Ley Outre à Crissier Suisse
Signalétique de CCHE pour le Quartier Ley Outre à Crissier Suisse
Architecture de CCHE pour le Quartier Ley Outre à Crissier Suisse
Architecture de CCHE pour le Quartier Ley Outre à Crissier Suisse
Architecture de CCHE pour le Quartier Ley Outre à Crissier Suisse

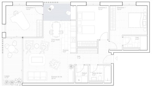
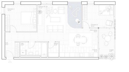
3D-Bilder und Pläne des Projekts

Urbanisme et Architecture de CCHE pour le concours Ley Outre Crissier Suisse
Urbanisme et Architecture de CCHE pour le concours Ley Outre Crissier Suisse
Urbanisme et Architecture de CCHE pour le concours Ley Outre Crissier Suisse
Urbanisme et Architecture de CCHE pour le concours Ley Outre Crissier Suisse
Urbanisme et Architecture de CCHE pour le concours Ley Outre Crissier Suisse
Urbanisme et Architecture de CCHE pour le concours Ley Outre Crissier Suisse
Urbanisme et Architecture de CCHE pour le concours Ley Outre Crissier Suisse

Lageplan, Längsschnitte

Urbanisme et Architecture de CCHE pour le concours Ley Outre Crissier Suisse
Urbanisme et Architecture de CCHE pour le concours Ley Outre Crissier Suisse
Urbanisme et Architecture de CCHE pour le concours Ley Outre Crissier Suisse

Typische Grundrisse: Modul A1 – A3, 3,5-Zimmer-Typ, 4,5-Zimmer-Typ

Zurück zu Projekte