Quartier Ancienne Papeterie : Plug-in 5

Marly

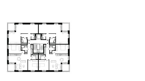
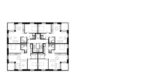
Le Plugin 5 se situe sur la Place de la Gérine, en face de la piscine et à côté du Plugin 4. Avec son esplanade, le Plugin 5 crée un lien avec la place et il garantit un dégagement visuel depuis la piscine. Au rez un restaurant s'ouvre sur l'esplanade et y amène de la vitalité. Aux étages se trouvent 18 habitations, ainsi que deux espaces d'activités. Avec ses façades en bois, l’architecture du Plugin 5 souligne le caractère écologique du quartier SEED.

Année

En cours

Mention

1er prix

Développé par

CCHE Lausanne SA et Magizan SA

Maître de l'ouvrage

Marly Innovation Center

Typologie

Quartier d'habitation

Programme

Logements, activités, restaurant, parking

Surface (SBP)

2'883 m2

Volume (SIA)

9'198 m3

Réalisation

CCHE Lausanne SA

Architecture de CCHE pour le quartier Ancienne Papeterie à Marly Suisse
Architecture de CCHE pour le quartier Ancienne Papeterie à Marly Suisse
Architecture de CCHE pour le quartier Ancienne Papeterie à Marly Suisse

Plans: Rez-de-chaussée, 1er étage, 2ème étage

Retour aux projets