Stadtviertel Ancienne Papeterie : Plug-in 5

Marly

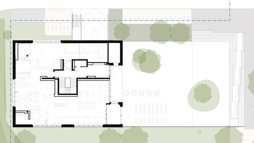
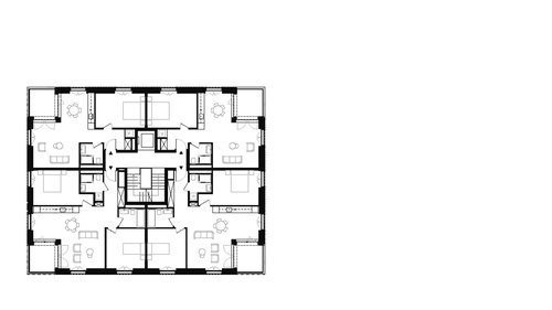
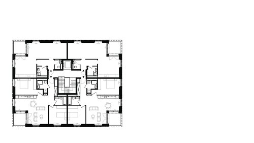
Plugin 5 befindet sich auf dem Place de la Gérine, gegenüber dem Schwimmbad und neben Plugin 4. Mit seiner Esplanade stellt das Plugin 5 eine Verbindung zum Platz her und gewährleistet eine visuelle Trennung vom Schwimmbad. Im Erdgeschoss befindet sich ein Restaurant, das sich zur Esplanade hin öffnet und ihr Vitalität verleiht. In den Obergeschossen befinden sich 18 Wohnungen sowie zwei Aktivitätsbereiche. Mit seinen Holzfassaden unterstreicht die Architektur von Plugin 5 den ökologischen Charakter des SEED-Viertels.

Jahr

Im Bau

Erwähnung

1. Preis

Entwickelt von

CCHE Lausanne SA und Magizan SA

Bauherr

Marly Innovation Center

Typologie

Wohnviertel

Programm

Wohnungen, Aktivitäten, Restaurant, Parkplätze

Geschossfläche (BGF)

2.883 m2

Volumen (SIA)

9.198 m3

Realisierung

CCHE Lausanne SA

Architecture de CCHE pour le quartier Ancienne Papeterie à Marly Suisse
Architecture de CCHE pour le quartier Ancienne Papeterie à Marly Suisse
Architecture de CCHE pour le quartier Ancienne Papeterie à Marly Suisse

Grundrisse: Erdgeschoss, 1. Stock, 2. Stock

Zurück zu Projekte