Quartier Ancienne Papeterie : Plug-in 4

Marly

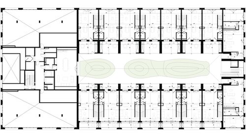
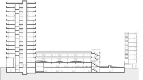
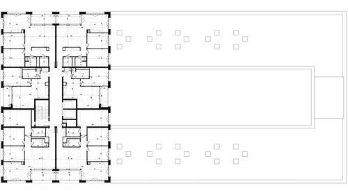
Cet ensemble emblématique du site localisé en bordure de la Gérine profite d'un emplacement privilégié. Il est composé de 2 éléments bien distincts, une tour de 14 étages qui accueille 60 logements et plus de 1'600 m2 d'activités, ainsi qu'une partie plus basse regroupant 14 duplex et 4 simplex autour d'une cour intérieure végétalisée.

Ces deux éléments sont situés sur un socle commun, composé de plus de 1'000 m2 d'activités et de services, qui donnent directement accès à la Place de la Gérine, sur laquelle différentes activités (marchés, etc..) pourront à terme être organisées afin d'animer l'endroit.

Le complexe, qui bénéficie d'un bilan énergétique 100% renouvelable, est raccordé au nouveau système de chauffage à distance et équipé d'un système de ventilation double flux.

Le revêtement de la façade est en brique de couleur rouge. Le choix des architectes s'est porté sur ce matériau afin d'apporter un clin d’œil à l’historique du site, anciennement une cité industrielle.

Année

2022

Développé par

CCHE Lausanne SA et Magizan SA

Maître de l'ouvrage

Marly Innovation Center

Programme

78 logements

Surface (SBP)

9'571 m2

Réalisation

Magizan SA

Urbanisme et Architecture de CCHE pour le quartier Ancienne Papeterie à Marly Suisse
Urbanisme et Architecture de CCHE pour le quartier Ancienne Papeterie à Marly Suisse
Urbanisme et Architecture de CCHE pour le quartier Ancienne Papeterie à Marly Suisse
Urbanisme et Architecture de CCHE pour le quartier Ancienne Papeterie à Marly Suisse
Urbanisme et Architecture de CCHE pour le quartier Ancienne Papeterie à Marly Suisse
Urbanisme et Architecture de CCHE pour le quartier Ancienne Papeterie à Marly Suisse

Axonométrie

Urbanisme et Architecture de CCHE pour le quartier Ancienne Papeterie à Marly Suisse
Urbanisme et Architecture de CCHE pour le quartier Ancienne Papeterie à Marly Suisse
Urbanisme et Architecture de CCHE pour le quartier Ancienne Papeterie à Marly Suisse
Urbanisme et Architecture de CCHE pour le quartier Ancienne Papeterie à Marly Suisse
Urbanisme et Architecture de CCHE pour le quartier Ancienne Papeterie à Marly Suisse
Urbanisme et Architecture de CCHE pour le quartier Ancienne Papeterie à Marly Suisse
Urbanisme et Architecture de CCHE pour le quartier Ancienne Papeterie à Marly Suisse
Retour aux projets