Ancienne Papeterie district : Plug-in 5

Marly

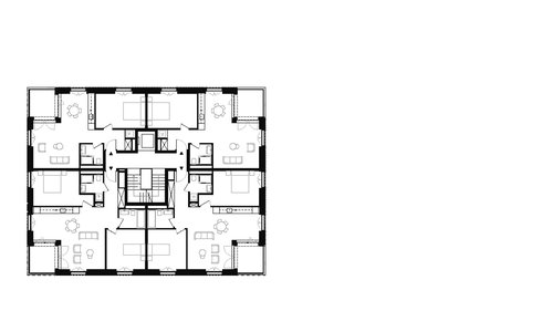
Plugin 5 is located on Place de la Gérine, opposite the swimming pool and adjacent to Plugin 4. Thanks to its esplanade, Plugin 5 creates a link to the square and guarantees visual clearance from the swimming pool. On the ground floor, a restaurant opens onto the esplanade, bringing a sense of vitality to the area. On the upper floors there are 18 homes and two activity areas. With its wooden facades, the Plugin 5 architecture epitomizes the SEED district’s ecological footprint.

Year

Ongoing

Mention

1st prize

Developed by

CCHE Lausanne SA and Magizan SA

Client

Marly Innovation Center

Typology

Residential area

Program

Residential, business, restaurant, car park

Floor area (GFA)

2,883 m2

Volume (SIA)

9,198 m3

Realization

CCHE Lausanne SA

Architecture de CCHE pour le quartier Ancienne Papeterie à Marly Suisse
Architecture de CCHE pour le quartier Ancienne Papeterie à Marly Suisse
Architecture de CCHE pour le quartier Ancienne Papeterie à Marly Suisse

Plans: Ground floor, 1st floor, 2nd floor

Back to projects