Centre commercial de la Tourelle

Genève

Dans le cadre du projet de revitalisation du centre commercial de la Tourelle, LF Real Estate Sàrl a mandaté CCHE Lausanne SA pour repenser l’intérieur du centre commercial ainsi que la signalétique. CCHE Lausanne SA a travaillé en direct avec la société GARAMA SA, représentante du Maître d’ouvrage.

Considéré comme un élément du patrimoine architectural genevois, le centre commercial de la Tourelle est un centre de quartier qui contient différents commerces et activités répartis sur trois demi-niveaux de magasins et trois demi-niveaux de parking dans les sous-sols. Cette configuration, qui plus est dans un bâtiment ayant bien vécu, complique les circulations et offre peu de visibilité aux différentes surfaces commerciales.

L'objectif principal de cette rénovation est donc le réaménagement intérieur des espaces pour insuffler une nouvelle dynamique au bâtiment, améliorer le niveau de confort et optimiser les flux de circulation.

La rénovation doit donc garantir la pérennité du centre commercial de la Tourelle au cœur de son quartier, renforcer son attrait en améliorant l'offre et créer une atmosphère conviviale et moderne.

Sans oublier l’aspect technique du bâtiment, avec la rénovation et la mise aux normes l'ensemble des installations technique et amélioration de l'enveloppe grâce au remplacement des menuiseries et à l'isolation des façades.

Développé par

CCHE Lausanne SA

Maître de l'ouvrage

Garama SA

Typologie

Transformation

Programme

Commerces

Procédure

Appel d'offres

Signalétique

CCHE Design

Concept transformation de CCHE pour le projet du centre commercial de la Tourelle Genève Suisse
Concept transformation de CCHE pour le projet du centre commercial de la Tourelle Genève Suisse
Concept transformation de CCHE pour le projet du centre commercial de la Tourelle Genève Suisse
Concept transformation de CCHE pour le projet du centre commercial de la Tourelle Genève Suisse
Concept transformation de CCHE pour le projet du centre commercial de la Tourelle Genève Suisse

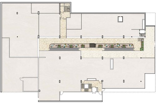
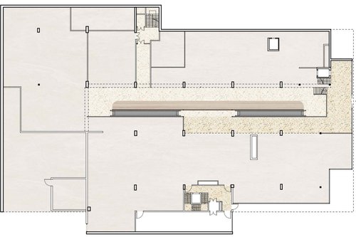
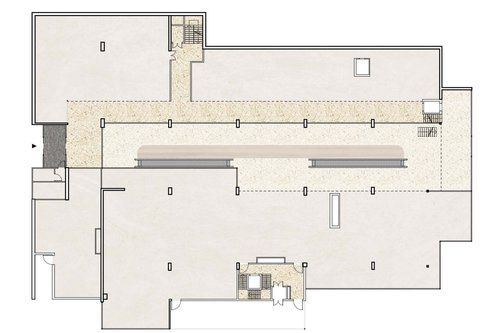
Plans

Zone d'intervention

Concept transformation de CCHE pour le projet du centre commercial de la Tourelle Genève Suisse
Concept transformation de CCHE pour le projet du centre commercial de la Tourelle Genève Suisse
Concept transformation de CCHE pour le projet du centre commercial de la Tourelle Genève Suisse

1er étage, Rez-de-chaussée, Rez inférieur

Concept transformation de CCHE pour le projet du centre commercial de la Tourelle Genève Suisse

Coupe AA

Concept

Concept transformation de CCHE pour le projet du centre commercial de la Tourelle Genève Suisse

Palette de matériaux

Concept transformation de CCHE pour le projet du centre commercial de la Tourelle Genève Suisse
Concept transformation de CCHE pour le projet du centre commercial de la Tourelle Genève Suisse
Concept transformation de CCHE pour le projet du centre commercial de la Tourelle Genève Suisse
Concept transformation de CCHE pour le projet du centre commercial de la Tourelle Genève Suisse
Concept transformation de CCHE pour le projet du centre commercial de la Tourelle Genève Suisse
Concept transformation de CCHE pour le projet du centre commercial de la Tourelle Genève Suisse
Retour aux projets