Einkaufszentrum La Tourelle

Genf

Im Rahmen des Projekts zur Revitalisierung des Einkaufszentrums La Tourelle beauftragte LF Real Estate Sàrl CCHE Lausanne SA mit der Neugestaltung des Innenbereichs des Einkaufszentrums sowie der Beschilderung. CCHE Lausanne SA arbeitete direkt mit der Firma GARAMA SA, der Vertreterin des Bauherrn, zusammen.

Das Einkaufszentrum La Tourelle zählt zum Genfer Architekturerbe und ist ein Stadtteilzentrum mit verschiedenen Geschäften und Aktivitäten, die sich auf drei halbe Ladenebenen und drei halbe Parkplatzebenen in den Untergeschossen verteilen. Diese Konfiguration, noch dazu in einem Gebäude, das seine besten Zeiten schon hinter sich hat, erschwert die Zirkulation und bietet den verschiedenen Geschäftsflächen wenig Übersichtlichkeit.

Das Hauptziel der Renovierung ist daher die Neugestaltung der Innenbereiche, um dem Gebäude eine neue Dynamik zu verleihen, den Komfort zu verbessern und die Zirkulationsströme zu optimieren.

Die Renovierung soll somit den Fortbestand des Einkaufszentrums La Tourelle im Herzen seines Viertels sichern, seine Attraktivität durch ein verbessertes Angebot steigern und eine freundliche und moderne Atmosphäre schaffen.

Berücksichtigt wird dabei auch der technische Aspekt des Gebäudes, mit der Renovierung und Modernisierung der gesamten technischen Anlagen und der Verbesserung der Gebäudehülle durch den Austausch der Schreinerarbeiten und die Isolierung der Fassaden.

Entwickelt von

CCHE Lausanne SA

Bauherr

Garama SA

Typologie

Transformation

Programm

Geschäfte

Verfahren

Ausschreibung

Beschilderung

CCHE Design

Concept transformation de CCHE pour le projet du centre commercial de la Tourelle Genève Suisse
Concept transformation de CCHE pour le projet du centre commercial de la Tourelle Genève Suisse
Concept transformation de CCHE pour le projet du centre commercial de la Tourelle Genève Suisse
Concept transformation de CCHE pour le projet du centre commercial de la Tourelle Genève Suisse
Concept transformation de CCHE pour le projet du centre commercial de la Tourelle Genève Suisse

Pläne

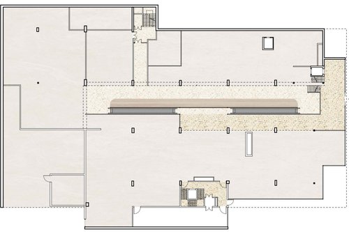
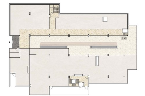
Bereich der Intervention

Concept transformation de CCHE pour le projet du centre commercial de la Tourelle Genève Suisse
Concept transformation de CCHE pour le projet du centre commercial de la Tourelle Genève Suisse
Concept transformation de CCHE pour le projet du centre commercial de la Tourelle Genève Suisse

1. Stock, Erdgeschoss, Unteres Erdgeschoss

Concept transformation de CCHE pour le projet du centre commercial de la Tourelle Genève Suisse

Schnitt AA

Konzept

Concept transformation de CCHE pour le projet du centre commercial de la Tourelle Genève Suisse

Materialpalette

Concept transformation de CCHE pour le projet du centre commercial de la Tourelle Genève Suisse
Concept transformation de CCHE pour le projet du centre commercial de la Tourelle Genève Suisse
Concept transformation de CCHE pour le projet du centre commercial de la Tourelle Genève Suisse
Concept transformation de CCHE pour le projet du centre commercial de la Tourelle Genève Suisse
Concept transformation de CCHE pour le projet du centre commercial de la Tourelle Genève Suisse
Concept transformation de CCHE pour le projet du centre commercial de la Tourelle Genève Suisse
Zurück zu Projekte