Centre commercial Malley Lumières

Malley

Ensemble compact d’activités hétérogènes…

L’adaptation audacieuse d’un plan de quartier des années 70 élaboré pour une zone artisanale, a permis la réalisation de ce volume polyvalent, en perpétuelle évolution lors du développement du projet.

Cette structure cadre accueille des types de programmes très variés tels que bureaux, commerces, cinéma et fitness. La cohabitation des utilisateurs de ce véritable "centre de loisirs", inconnus au départ, a exigé flexibilité et discipline de la part de tous les partenaires, avec des défis intéressants à résoudre, notamment au niveau de l’isolation phonique, de l’organisation et des circulations.

Année

Centre Malley Lumières 2001, Entrée Ouest 2014, Entrée Est 2017

Développé par

CCHE Lausanne SA

Maître de l'ouvrage

Centre Malley Lumières, 2001 : SI Malley-Centre SA

Entrée Ouest, 2014 : SUVA - Division des immeubles

Entrée Est, 2017 : SUVA - Division des immeubles

Typologie

Centre commercial : Nouvelle construction, Entrée Ouest et Est : Transformation

Programme

Centre Malley Lumières : Fitness, cinéma multisalles, bureaux, commerces alimentaires et non-alimentaires, restaurant, piscine, discothèque, bar, poste, pharmacie, kiosque, parking

Entrée Ouest : Bureaux, commerces, restaurant, fitness, nouvelle entrée

Entrée Est : Nouvelle entrée, ascenseurs, escaliers, réorganisation des accès, commerces, restaurant

Surface (SBP)

Centre Malley Lumières : 23'900 m2

Entrée Ouest : 1'650 m2

Entrée Est : 2'500 m2

Volume (SIA)

Centre Malley Lumières : 172'500 m3

Entrée Ouest : 6'750 m3

Entrée Est : 10'000 m3

Réalisation

Centre Malley Lumières : Karl Steiner Entreprise Générale SA

Entrée Ouest : CCHE Lausanne SA

Entrée Est : CCHE Lausanne SA

Architecture de CCHE pour le Centre Commercial Malley Lumières Suisse


D’un point de vue extérieur, le bâtiment se targue de la première enveloppe double peau réalisée à Lausanne et qui agit comme un écran de protection thermique et acoustique afin de mieux répondre aux contraintes du site (axe ferroviaire, route et giratoires).

Architecture de CCHE pour le Centre Commercial Malley Lumières Suisse
Architecture de CCHE pour le Centre Commercial Malley Lumières Suisse
Architecture de CCHE pour le Centre Commercial Malley Lumières Suisse
Architecture de CCHE pour le Centre Commercial Malley Lumières Suisse
Architecture de CCHE pour le Centre Commercial Malley Lumières Suisse
Architecture de CCHE pour le Centre Commercial Malley Lumières Suisse
Architecture de CCHE pour le Centre Commercial Malley Lumières Suisse

Malley Lumières – Entrée Ouest, 2014

Transformation de l'aile ouest

Après plus de 15 ans d’exploitation, l’aile ouest du centre commercial Malley Lumières nécessitait une transformation substantielle de son fonctionnement et de son apparence.

Au niveau du programme, les surfaces commerciales ont été réorganisées. Certaines enseignes ont cessé leur activité dans le centre, et d’autres ont été déplacées et/ou agrandies. Même après la réorganisation, le centre commercial conserve sa vocation initiale de centre de quartier, qui peut subvenir aux besoins quotidiens des riverains (Migros, Poste, pharmacie, restaurant, coiffeur, …).

La transformation engagée dès 2011 avait certes pour objectif de redynamiser l’activité du centre, mais elle aura également un impact fondamental sur toute l’évolution du quartier de Malley. La nouvelle entrée ouest accompagnée par son dégagement offre aujourd’hui déjà un lieu de rencontre et de convivialité dans le quartier. La liaison interne a été repensée également en profondeur.

Malley Lumières ne cesse de s’adapter à l’évolution sociale et urbaine de son environnement. La réflexion menée pour la nouvelle entrée ouest a ouvert la voie à l’application du principe également du côté est du bâtiment, pour le raccorder d’avantage à la gare et à l’avenue du Chablais. A la fin de la mue complète du centre, les habitants du quartier ainsi que les futurs utilisateurs de l’ancienne friche industrielle de Malley trouveront un nouveau lieu de rencontre à la fois accessible et convivial.

L’ensemble de ces travaux a été mené avec les contraintes d’utilisation d’un centre commercial en activité.

Architecture de CCHE pour le Centre Commercial Malley Lumières Suisse
Architecture de CCHE pour le Centre Commercial Malley Lumières Suisse
Architecture de CCHE pour le Centre Commercial Malley Lumières Suisse

Malley Lumières – Entrée Est, 2017

Transformation du centre commercial et administratif Malley Lumières

L’intervention prévoit un nouvel accès au centre commercial de Malley-Lumières sur la façade Est du bâtiment au niveau de la station service existante. Cette nouvelle entrée est desservie par deux nouveaux escaliers roulants ainsi que deux ascenseurs qui mènent au rez-de-chaussée, niveau des commerces.

La transformation intérieure du bâtiment concerne notamment la réorganisation des espaces commerciaux et la mise en conformité vis-à-vis des normes de sécurité incendie (distances de fuite, nombre de sorties de secours et désenfumage).
L’intervention architecturale, elle, s'est portée sur le rafraichissement des faux-plafonds, du sol et des vitrines commerciales dans le nouveau couloir Est du bâtiment ainsi que dans le mall central.

Les commerces existants sont restés en exploitation pendant les travaux. Ceux-ci ont été planifié selon un étappage minutieusement étudié pour éviter au maximum les nuisances (travaux de nuit et le dimanche, prise en compte des périodes de vacances, fermeture étanche des zones en chantier, etc.).

De nouveaux aménagements extérieurs sont prévus afin de lier l’esplanade du rez-de-chaussée et le niveaux de la nouvelle sortie Est. Ils permettront également de clarifier la voie d’accès à la station service et la zone piétonne.

Architecture de CCHE pour le Centre Commercial Malley Lumières Suisse

Cette nouvelle sortie offre une connexion plus directe pour les utilisateurs de la gare de Prilly-Malley. Le centre commercial devient plus attractif et plus accessible.

Architecture de CCHE pour le Centre Commercial Malley Lumières Suisse
Architecture de CCHE pour le Centre Commercial Malley Lumières Suisse
Architecture de CCHE pour le Centre Commercial Malley Lumières Suisse

Les vitrines commerciales sont équipées d’un système de panneaux coulissants en métal perforé et verre de manière à pouvoir fermer les commerces indépendamment du mall. Un bandeau lumineux permet d’unifier la signalisation de l’ensemble des enseignes.

Architecture de CCHE pour le Centre Commercial Malley Lumières Suisse
cche-architecture-cArchitecture de CCHE pour le Centre Commercial Malley Lumières Suisseentre-commercial-malley-lumieres-015.jpg
Architecture de CCHE pour le Centre Commercial Malley Lumières Suisse
Architecture de CCHE pour le Centre Commercial Malley Lumières Suisse
Architecture de CCHE pour le Centre Commercial Malley Lumières Suisse
Architecture de CCHE pour le Centre Commercial Malley Lumières Suisse
Architecture de CCHE pour le Centre commercial Malley Lumières Suisse

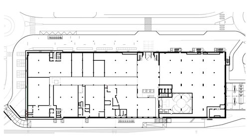
Plan 2001-2012 du rez-de-chaussée 1:1000

Retour aux projets