Bureau CCHE Genève

Genève

Aménagement intérieur du nouveau siège de CCHE Genève au cœur du quartier des bains.

Toute l'équipe de CCHE Genève occupe désormais deux étages d'un immeuble de bureau au coeur du quartier des bains. Les surfaces auparavant occupées par une banque offraient un aménagement datant des années 90, structuré de façon très traditionnelle majoritairement en open space. 

Ce nouvel outil de travail, de vie et de représentation de notre savoir-faire illustre un concept architectural évolutif, avec une variété d'espaces pensés pour s'adapter à la vie de l'entreprise, du collaborateur et aux différents métiers présents au sein du bureau. 

Une multiplicité d'espaces singuliers ont été intégrés pour stimuler la créativité et offrir une liberté aux collaborateurs dans leur façon de travailler et de vivre l’espace.

La première intervention a consisté à déposer tous les éléments d'aménagement intérieur: sols, cloisons et faux-plafonds. Cette opération a permis de mettre en lumière la structure de l'immeuble en béton armé ainsi que les installations techniques, parfaitement fonctionnelles. Dans un soucis de rationalité,  mais également charmés par l'aspect brut des divers éléments découverts il a été rapidement décidé de les mettre en valeur et de structurer notre aménagement autour d'une philosophie résolument axée sur la matière brute, l'espace et la lumière.

Ainsi les éléments structurels ont été mis en valeur plutôt que d'être revêtus. Quant aux installations techniques majoritairement présentes au plafond, elle ont été assumées dans leur état, augmentant de ce fait la sensation de volume des espaces.

Voir la phase en travaux

Année

2023

Développé par

CCHE Genève SA

Maître de l'ouvrage

CCHE Genève SA

Typologie

Aménagement de bureaux

Surface (SBP)

932 m2

Volume (SIA)

3'260 m3

Réalisation

CCHE Genève SA

Architecture et réalisation de CCHE pour le nouveau bureau CCHE Genève Suisse

Développement durable

Less is more. Le principe élémentaire du développement durable est mis en valeur à travers la simplicité de notre intervention, la conservation des éléments existants et l'usage de matériaux simples et durables.

La situation du bureau, au coeur de la ville, à proximité immédiate de la grande majorité de nos projets et de nos clients permet de réduire drastiquement les déplacements professionnels.

La qualité et le confort des espaces de travail, la multiplicité des espaces de rencontres et de repos, ainsi que la mise à disposition d’une salle de sport pour nos collaborateurs.trices améliore la qualité de vie du quotidien.

Architecture et réalisation de CCHE pour le nouveau bureau CCHE Genève Suisse
Architecture et réalisation de CCHE pour le nouveau bureau CCHE Genève Suisse

L’utilisation de bois massif européen, soutenant une gestion forestière socialement et écologiquement respectable, amène cachet et chaleur aux aménagements sur-mesures développés par notre équipe d’architectes d’intérieurs.

Architecture et réalisation de CCHE pour le nouveau bureau CCHE Genève Suisse
Architecture et réalisation de CCHE pour le nouveau bureau CCHE Genève Suisse
Architecture et réalisation de CCHE pour le nouveau bureau CCHE Genève Suisse
Architecture et réalisation de CCHE pour le nouveau bureau CCHE Genève Suisse
Architecture et réalisation de CCHE pour le nouveau bureau CCHE Genève Suisse

Cet aménagement, propice à l'innovation et à la collaboration, représente notre vision d'un environnement de travail moderne, dynamique et axé sur la créativité et les échanges. 

Architecture et réalisation de CCHE pour le nouveau bureau CCHE Genève Suisse
Architecture et réalisation de CCHE pour le nouveau bureau CCHE Genève Suisse
Architecture et réalisation de CCHE pour le nouveau bureau CCHE Genève Suisse
Architecture et réalisation de CCHE pour le nouveau bureau CCHE Genève Suisse
Architecture et réalisation de CCHE pour le nouveau bureau CCHE Genève Suisse
Architecture et réalisation de CCHE pour le nouveau bureau CCHE Genève Suisse
Architecture et réalisation de CCHE pour le nouveau bureau CCHE Genève Suisse
Architecture et réalisation de CCHE pour le nouveau bureau CCHE Genève Suisse
Architecture et réalisation de CCHE pour le nouveau bureau CCHE Genève Suisse
Architecture et réalisation de CCHE pour le nouveau bureau CCHE Genève Suisse

Du concept à la réalisation

CCHE Nouveau bureau de notre filiale CCHE Genève Suisse
CCHE Nouveau bureau de notre filiale CCHE Genève Suisse
CCHE Nouveau bureau de notre filiale CCHE Genève Suisse
Architecture et réalisation de CCHE pour le nouveau bureau CCHE Genève Suisse
Architecture et réalisation de CCHE pour le nouveau bureau CCHE Genève Suisse

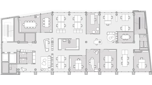
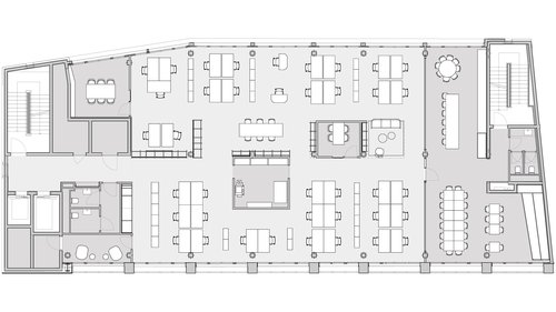
Plans 2e et 3e étage

Retour aux projets