CCHE-Büro Genf

Genf

Inneneinrichtung des neuen Hauptsitzes von CCHE Genf im Herzen des Quartier des Bains.

Das gesamte Team von CCHE Genf bewohnt nun zwei Etagen eines Bürogebäudes im Herzen des Quartier des Bains. Die zuvor von einer Bank genutzten Flächen boten eine Einrichtung aus den 90er Jahren, die sehr traditionell strukturiert war und überwiegend aus Großraumbüros bestand.

Dieses neue Arbeits-, Lebens- und Repräsentationsmittel für unser Know-how veranschaulicht ein evolutives architektonisches Konzept mit einer Vielzahl von Räumen, die sich an das Leben des Unternehmens, der Mitarbeiter und die verschiedenen, im Büro vertretenen Berufe anpassen sollen.

Eine Vielzahl von Einzelräumen wurde integriert, um die Kreativität zu fördern und den Mitarbeitern Freiheit in ihrer Art und Weise zu arbeiten und den Raum zu erleben zu geben.

Der erste Eingriff war die Entfernung der gesamten Innenausstattung : Böden, Trennwände und Zwischendecken. Dabei kamen die Struktur des Gebäudes aus Stahlbeton und die perfekt funktionierenden technischen Installationen zum Vorschein. Im Interesse der Rationalität, aber auch aufgrund des rohen Aussehens der verschiedenen entdeckten Elemente, wurde schnell beschlossen, diese zur Geltung zu bringen und unsere Einrichtung nach einer Philosophie zu strukturieren, die auf rohe Materialien, Raum und Licht ausgerichtet ist.

So wurden die strukturellen Elemente eher hervorgehoben als verkleidet. Die technischen Installationen, die sich größtenteils in der Decke befinden, wurden in ihrem Zustand belassen, wodurch das Raumgefühl vergrößert wurde.

Siehe Bauphase

Jahr

2023

Entwickelt von

CCHE Genève SA

Bauherr

CCHE Genève SA

Typologie

Einrichtung von Büros

Geschossfläche (BGF)

932 m2

Volumen (SIA)

3.260 m3

Realisierung

CCHE Genève SA

Architecture et réalisation de CCHE pour le nouveau bureau CCHE Genève Suisse

Nachhaltige Entwicklung

Weniger ist mehr. Das elementare Prinzip der nachhaltigen Entwicklung wird durch die Einfachheit unserer Intervention, die Erhaltung bestehender Elemente und die Verwendung einfacher und nachhaltiger Materialien hervorgehoben.

Die Lage des Büros im Herzen der Stadt, in unmittelbarer Nähe der großen Mehrheit unserer Projekte und unserer Kunden, ermöglicht, die Arbeitswege drastisch zu reduzieren.

Die Qualität und der Komfort der Arbeitsräume, die Vielzahl an Begegnungs- und Ruhezonen sowie die Bereitstellung eines Fitnessraums für unsere Mitarbeiter/innen verbessern die alltägliche Lebensqualität.

Architecture et réalisation de CCHE pour le nouveau bureau CCHE Genève Suisse
Architecture et réalisation de CCHE pour le nouveau bureau CCHE Genève Suisse

Die Verwendung von europäischem Massivholz aus sozial- und umweltfreundlicher Forstwirtschaft verleiht der von unserem Innenarchitektenteam entwickelten maßgefertigten Einrichtung eine besondere Note und Wärme.

Architecture et réalisation de CCHE pour le nouveau bureau CCHE Genève Suisse
Architecture et réalisation de CCHE pour le nouveau bureau CCHE Genève Suisse
Architecture et réalisation de CCHE pour le nouveau bureau CCHE Genève Suisse
Architecture et réalisation de CCHE pour le nouveau bureau CCHE Genève Suisse
Architecture et réalisation de CCHE pour le nouveau bureau CCHE Genève Suisse

Diese Einrichtung, die Innovation und Zusammenarbeit fördert, repräsentiert unsere Vision einer modernen, dynamischen Arbeitsumgebung, die auf Kreativität und Austausch ausgerichtet ist.

Architecture et réalisation de CCHE pour le nouveau bureau CCHE Genève Suisse
Architecture et réalisation de CCHE pour le nouveau bureau CCHE Genève Suisse
Architecture et réalisation de CCHE pour le nouveau bureau CCHE Genève Suisse
Architecture et réalisation de CCHE pour le nouveau bureau CCHE Genève Suisse
Architecture et réalisation de CCHE pour le nouveau bureau CCHE Genève Suisse
Architecture et réalisation de CCHE pour le nouveau bureau CCHE Genève Suisse
Architecture et réalisation de CCHE pour le nouveau bureau CCHE Genève Suisse
Architecture et réalisation de CCHE pour le nouveau bureau CCHE Genève Suisse
Architecture et réalisation de CCHE pour le nouveau bureau CCHE Genève Suisse
Architecture et réalisation de CCHE pour le nouveau bureau CCHE Genève Suisse

Vom Konzept zur Umsetzung

CCHE Nouveau bureau de notre filiale CCHE Genève Suisse
CCHE Nouveau bureau de notre filiale CCHE Genève Suisse
CCHE Nouveau bureau de notre filiale CCHE Genève Suisse
Architecture et réalisation de CCHE pour le nouveau bureau CCHE Genève Suisse
Architecture et réalisation de CCHE pour le nouveau bureau CCHE Genève Suisse

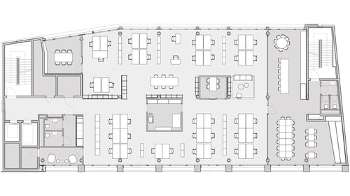
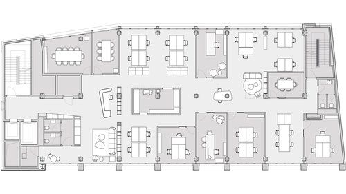
Pläne 2. und 3.Stockwerk

Zurück zu Projekte