Campus Firmenich

Genève

Aménagements intérieurs des bureaux de Firmenich, grande entreprise de création d’arômes et de fragrance ainsi que de la zone de restauration. Ce projet, qui a été récompensé par une 2e place dans le classement du Prix Bilan de l'Immobilier 2019, mêle culture locale et culture d'entreprise pour des aménagements sur mesure.

Mention

1er prix

Année

2020

Développé par

CCHE Lausanne SA

Maître de l'ouvrage

Firmenich

Surface (SBP)

New Building, 2019: 3'800 m2
Pavillon, 2019: 1'240 m2
Bâtiment 41, 2020: 2'500 m2

Collaboration

New Building: Losinger Marazi SA, Burckhardt + Partner AG
Pavillon: Losinger Marazi SA, Burckhardt + Partner AG
Sensory: Losinger Marazi SA, de Planta et Associés Architectes SA

Réalisation

Losinger Marazi SA

Le "New Building"

Dans le nouveau bâtiment, les zones administratives aménagées par CCHE reflètent la culture locale, afin de suivre la stratégie globale de l’entreprise et encourager l’identité locale. Cet espace de bureau mêle donc "swissness" et produits de la compagnie. Les paysages suisses sont tous très différents les uns des autres mais créent une seule et unique identité. Pour créer une identité forte, des paysages suisses ont été déployés dans les différents zones du bâtiment afin de créer trois univers qui différencient les laboratoires et les espaces de bureaux.

Architecture d'intérieur de CCHE pour Firmenich Suisse
Architecture d'intérieur de CCHE pour Firmenich Suisse
Architecture d'intérieur de CCHE pour Firmenich Suisse

Les ambiances sont créés par l’utilisation de différents matériaux, en privilégiant l’éclairage naturel tout en respectant les contraintes liées aux laboratoires.

Une attention particulière a été donnée aux nouveaux espaces de travail et à la philosophie « smartspace », telle que la politique du «clean desk», du «desk sharing», et de la mixité des espaces de travail (table haute, table basse, alcove,..) pour obtenir un bâtiment orienté vers ses utilisateurs et leurs nouveaux besoins.

De plus, les espaces sont réfléchis pour répondre au principe «healing architecture», visant à encourager la mobilisation des collaborateurs et favoriser les déplacements pendant leur journée en repensant l’ergonomie des lieux de travail.

Architecture d'intérieur de CCHE pour Firmenich Suisse

Lake (rez et rez supérieur) : c’est le monde des ondes, des formes souples et des tons bleus qui reflètent le ciel.

Architecture d'intérieur de CCHE pour Firmenich Suisse
Architecture d'intérieur de CCHE pour Firmenich Suisse
Architecture d'intérieur de CCHE pour Firmenich Suisse

Middleland (1er étage) : un paysage façonné par l’homme avec des formes rectilignes et les tons verts des exploitations agricoles.

Architecture d'intérieur de CCHE pour Firmenich Suisse
Architecture d'intérieur de CCHE pour Firmenich Suisse
Architecture d'intérieur de CCHE pour Firmenich Suisse
Architecture d'intérieur de CCHE pour Firmenich Suisse
Architecture d'intérieur de CCHE pour Firmenich Suisse
Architecture d'intérieur de CCHE pour Firmenich Suisse
Architecture d'intérieur de CCHE pour Firmenich Suisse
Architecture d'intérieur de CCHE pour Firmenich Suisse
Architecture d'intérieur de CCHE pour Firmenich Suisse

Mountain (2ème étage) : paysage caractérisé par les arrêtes, les pentes, un monde formé de bois et tons terreux.

Architecture d'intérieur de CCHE pour Firmenich Suisse
Architecture d'intérieur de CCHE pour Firmenich Suisse
Architecture d'intérieur de CCHE pour Firmenich Suisse
Architecture d'intérieur de CCHE pour Firmenich Suisse
Architecture d'intérieur de CCHE pour Firmenich Suisse
Architecture d'intérieur de CCHE pour Firmenich Suisse
Architecture d'intérieur de CCHE pour Firmenich Suisse

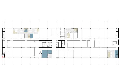
Plan rez inférieur - Plan rez supérieur - 1:250

Le Pavillon

La technologie mobile complète l’architecture pour optimiser l’expérience utilisateur. Le Pavillon, restaurant d’entreprise et nouvel espace de rencontre, sert de liaison entre les différents bâtiments du campus. Il représente les valeurs du Naturel qui sont mises en valeur avec une intégration de végétation et matériaux nobles dans les espaces de restauration et multipurpose.

New Building - Pavillon - Bâtiment 41

Architecture d'intérieur de CCHE pour Firmenich Suisse
Architecture d'intérieur de CCHE pour Firmenich Suisse
Architecture d'intérieur de CCHE pour Firmenich Suisse
Architecture d'intérieur de CCHE pour Firmenich Suisse
Architecture d'intérieur de CCHE pour Firmenich Suisse
Architecture d'intérieur de CCHE pour Firmenich Suisse
Architecture d'intérieur de CCHE pour Firmenich Suisse
Architecture d'intérieur de CCHE pour Firmenich Suisse
Architecture d'intérieur de CCHE pour Firmenich Suisse
Architecture d'intérieur de CCHE pour Firmenich Suisse
Architecture d'intérieur de CCHE pour Firmenich Suisse
Architecture d'intérieur de CCHE pour Firmenich Suisse
Architecture d'intérieur de CCHE pour Firmenich Suisse
Architecture d'intérieur de CCHE pour Firmenich Suisse

Bâtiment 41

Le concept "Happy Home" est le fil conducteur du projet CCHE. Situé au sein du bâtiment 41, l’espace « Sensory »se veut le reflet de la Maison Firmenich, l’identité de la famille. Reproduisant les pièces à vivre d’un logement où sont utilisés au quotidien chacun des produits développés par la firme, cette zone est destinée à recevoir les clients mais aussi les panélistes travaillant sur le site pour tester les produits.

Architecture d'intérieur de CCHE pour le Campus Firmenich Suisse
Architecture d'intérieur de CCHE pour le Campus Firmenich Suisse
Architecture d'intérieur de CCHE pour le Campus Firmenich Suisse
Architecture d'intérieur de CCHE pour le Campus Firmenich Suisse
Architecture d'intérieur de CCHE pour le Campus Firmenich Suisse
Architecture d'intérieur de CCHE pour le Campus Firmenich Suisse
Architecture d'intérieur de CCHE pour le Campus Firmenich Suisse
Architecture d'intérieur de CCHE pour le Campus Firmenich Suisse
Architecture d'intérieur de CCHE pour le Campus Firmenich Suisse
Architecture d'intérieur de CCHE pour le Campus Firmenich Suisse
Architecture d'intérieur de CCHE pour le Campus Firmenich Suisse
Retour aux projets