Bureaux CCHE Nyon SA

Nyon

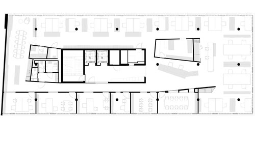
Aménagement intérieur d'un nouvel outil de travail moderne et fonctionnel pour le bureau CCHE Nyon. Développés sur mesure pour la filiale nyonnaise du groupe CCHE, les différents espaces de travail sont disposés sur un grand plateau ouvert très favorable aux interactions. L’ambiance se veut calme et chaleureuse « comme à la maison » et laisse une grande place aux matériaux bruts et aux tonalités gris et blanc chaud. Le bureau est situé au numéro 9 de l'ensemble d'immeubles dénommés "Les Résidences du Parc" sis rue de la Morâche à Nyon et réalisés par CCHE.

Année

2014

Développé par

CCHE Lausanne SA

Maître de l'ouvrage

CCHE Nyon SA

Typologie

Aménagements intérieurs

Surface (SBP)

470 m²

Volume (SIA)

1'200 m³

Réalisation

CCHE Nyon SA (ex-SUARD-CCHE Architecture SA)

Architecture d'intérieur de CCHE pour le bureau de CCHE Nyon SA Suisse

Un élément séparateur a été intégré entre la façade sud et le noyau central pour créer un couloir de distribution vers les bureaux fermés et salles de conférence. Il est revêtu d’un côté par des lames en bois peintes, s’étendant aussi au plafond avec à la fois une fonction esthétique et technique. Grâce à sa composition, l'élément permet l’absorption phonique et l’intégration de la technique qui est ainsi distribuée dans les salles de conférence et bureaux fermés de manière invisible.

Architecture d'intérieur de CCHE pour le bureau de CCHE Nyon SA Suisse

L' atmosphère chaleureuse et la disposition des différentes zones de bureau sur un grand plateau favorisent les échanges, très importants dans le travail d'architecte. Cet espace ouvert, très soigné et avant-gardiste témoigne du savoir faire de CCHE et du souci de transparence envers ses clients. Les bureaux open space sont répartis sur un plateau brut avec un grand noyau central englobant les circulations verticales.

Architecture d'intérieur de CCHE pour le bureau de CCHE Nyon SA Suisse
Architecture d'intérieur de CCHE pour le bureau de CCHE Nyon SA Suisse
Architecture d'intérieur de CCHE pour le bureau de CCHE Nyon SA Suisse
Architecture d'intérieur de CCHE pour le bureau de CCHE Nyon SA Suisse
Architecture d'intérieur de CCHE pour le bureau de CCHE Nyon SA Suisse
Architecture d'intérieur de CCHE pour le bureau de CCHE Nyon SA Suisse
Architecture d'intérieur de CCHE pour le bureau de CCHE Nyon SA Suisse
Architecture d'intérieur de CCHE pour le bureau de CCHE Nyon SA Suisse
Architecture d'intérieur de CCHE pour le bureau de CCHE Nyon SA Suisse
Retour aux projets