Colombière 29

Nyon

Located in the heart of Nyon, on the edge of the old town, the plot enjoys a simply exceptional location. The major challenge of this project is to offer each home a panoramic view of the lake, mountains and Nyon Castle.

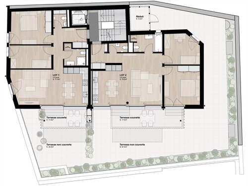
A subtle interplay with the balcony-loggias has been created to enable each flat to enjoy this rich and varied view. The work on these prefabricated concrete elements gives a sculptural character to this large south-facing gable, while giving each tenant an intimate outdoor extension, enhanced by the use of screens. The open gable architecture has been meticulously designed to blend harmoniously with the existing environment. The homes feature attractive south-facing living rooms with large bay windows to maximise sunlight.

Compact architecture, with solar and solar thermal panels installed on the roof. Single-flow ventilation. Use of sustainable natural materials.

Year

2021

Developed by

CCHE Nyon SA

Client

Private client

Typology

Rental building

Program

Rental building with 7 flats + car park

Floor area (GFA)

1'193 m2

Volume (SIA)

3'665 m3

Realization

CCHE Nyon SA

Architecture et réalisation de CCHE pour l'immeuble de logement la Colombière 29 Suisse
Architecture et réalisation de CCHE pour l'immeuble de logement la Colombière 29 Suisse
Architecture et réalisation de CCHE pour l'immeuble de logement la Colombière 29 Suisse
Architecture et réalisation de CCHE pour l'immeuble de logement la Colombière 29 Suisse
Architecture et réalisation de CCHE pour l'immeuble de logement la Colombière 29 Suisse
Architecture et réalisation de CCHE pour l'immeuble de logement la Colombière 29 Suisse
Architecture et réalisation de CCHE pour l'immeuble de logement la Colombière 29 Suisse
Architecture et réalisation de CCHE pour l'immeuble de logement la Colombière 29 Suisse
Architecture et réalisation de CCHE pour l'immeuble de logement la Colombière 29 Suisse

The interior is finished with sleek and natural materials designed to last over time with soft colours to allow each tenant to make the space their own.

Architecture et réalisation de CCHE pour l'immeuble de logement la Colombière 29 Suisse
Architecture et réalisation de CCHE pour l'immeuble de logement la Colombière 29 Suisse
Colombière 29 - Page projet - vue bas/haut
Architecture et réalisation de CCHE pour l'immeuble de logement la Colombière 29 Suisse
Architecture et réalisation de CCHE pour l'immeuble de logement la Colombière 29 Suisse
Architecture et réalisation de CCHE pour l'immeuble de logement la Colombière 29 Suisse
Back to projects