Hôtel des Horlogers

Le Brassus

Hôtel des Horlogers: a place in harmony with its environment

Inspired by the Joux Valley, the brand new Hôtel des Horlogers recently opened its doors. The project was designed by BIG (Bjarke Ingels Group) and built by CCHE, the two partners who had already signed the Musée Atelier Audemars Piguet located a few steps away.

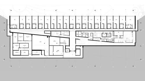
Thanks to an avant-garde concept and architecture, the building follows the topography of the Valley and blends with nature to immerse visitors in the natural environment of the place. The structure is made up of slabs that zigzag towards the valley and slope slightly to embrace the terrain and create a continuous path through nature. This concept understands the site as a series of mountain ridges descending the hill, where the building blocks are a series of berms lined with various trees and vegetation. The interior design is by the AUM agency, which has developed a concept that combines quality, comfort and user-friendliness, with an emphasis on local materials such as wood and stone.

Year

2022

Developed by

Consortium BIG (Bjarke Ingels Group) / CCHE Lausanne SA, Interior design: AUM Pierre Minassian

Client

Manufacture d'Horlogerie Audemars Piguet SA, Le Brassus

Program

Boutique Hotel, 50 rooms available including 12 suites, conference rooms, lobby, 2 restaurants, bar and wellness area.

Floor area (GFA)

6,300 m²

Volume (SIA)

30,000 m³

Collaboration

BIG

Realization

CCHE

Réalisation de CCHE de l’Hôtel des Horlogers Le Brassus Suisse
Réalisation de CCHE de l’Hôtel des Horlogers Le Brassus Suisse
Réalisation de CCHE de l’Hôtel des Horlogers Le Brassus Suisse
Réalisation de CCHE de l’Hôtel des Horlogers Le Brassus Suisse
Réalisation de CCHE de l’Hôtel des Horlogers Le Brassus Suisse
Actualité de CCHE pour Retour en image sur le chantier de l’Hôtel des Horlogers Le Brassus Suisse
Actualité de CCHE pour Retour en image sur le chantier de l’Hôtel des Horlogers Le Brassus Suisse
Actualité de CCHE pour Retour en image sur le chantier de l’Hôtel des Horlogers Le Brassus Suisse
Actualité de CCHE pour Retour en image sur le chantier de l’Hôtel des Horlogers Le Brassus Suisse
Actualité de CCHE pour Retour en images sur le chantier de l’Hôtel des Horlogers Le Brassus Suisse
Actualité de CCHE pour Retour en image sur le chantier de l’Hôtel des Horlogers Le Brassus Suisse
Actualité de CCHE pour Retour en image sur le chantier de l’Hôtel des Horlogers Le Brassus Suisse
Actualité de CCHE pour Retour en image sur le chantier de l’Hôtel des Horlogers Le Brassus Suisse
Actualité de CCHE pour Retour en image sur le chantier de l’Hôtel des Horlogers Le Brassus Suisse
Actualité de CCHE pour Retour en images sur le chantier de l’Hôtel des Horlogers Le Brassus Suisse

Architecture concept

BIG (Bjarke Ingels Group)

Realisation: CCHE

Réalisation de CCHE Hôtel des Horlogers Suisse
Réalisation de CCHE pour l'hôtel des horlogers Suisse
Hôtel des horlogers - animation schéma

The "Z" shaped building is declined in 5 ramps and is totally integrated in the hilly landscape of the Vallée de Joux. Heated with wood and made from raw materials such as local stone and wood, it has an interior walkway linking the bedrooms, lobby, restaurants, spa and seminar rooms.

Réalisation de CCHE pour l'Hôtel des Horlogers Audemars Piguet en Suisse

Interior architecture project

AUM. Pierre Minassian

Realisation: CCHE

Images de AUM pour le projet architecture d'intérieur
Images de AUM pour le projet architecture d'intérieur
Images de AUM pour le projet architecture d'intérieur

2019 CCHE Project

The CCHE la Vallée office was commissioned to propose a vision of interior design for the Hôtel des Horlogers, with the objective of proposing a project with a strong identity capable of embodying the rebirth of luxury tourism in the region and laying the foundations of a new style specific to the Vallée de Joux. To achieve this, the project finds its inspiration in the world and codes of watchmaking with a layout and furniture representing precision, refinement and attention to detail.

Projet intérieur de CCHE pour l'Hôtel des Horlogers Audemars Piguet en Suisse
Projet intérieur de CCHE pour l'Hôtel des Horlogers Audemars Piguet en Suisse
Projet intérieur de CCHE pour l'Hôtel des Horlogers Audemars Piguet en Suisse
Projet intérieur de CCHE pour l'Hôtel des Horlogers Audemars Piguet en Suisse
Projet intérieur de CCHE pour l'Hôtel des Horlogers Audemars Piguet en Suisse
Projet intérieur de CCHE pour l'Hôtel des Horlogers Audemars Piguet en Suisse

Foundation stone

Projet intérieur de CCHE pour l'Hôtel des Horlogers Audemars Piguet en Suisse

On Monday, June 4, 2018, we celebrated the laying of the foundation stone of the future Hôtel des Horlogers d'Audemars Piguet. See the article

Hôtel des horlogers - Page projet - vue dessus
Hôtel des horlogers - Page projet - vue bas/haut
Réalisation de CCHE pour l'hôtel des horloger Audemars Piguet en Suisse
Réalisation de CCHE pour l'hôtel des horloger Audemars Piguet en Suisse
Réalisation de CCHE pour l'Hôtel des Horlogers Audemars Piguet en Suisse
Réalisation de CCHE pour l'Hôtel des Horlogers Audemars Piguet en Suisse
Back to projects