Colombière 29

Nyon

Im Herzen von Nyon, am Rande der Altstadt gelegen, genießt die Parzelle eine einfach außergewöhnliche Lage. Die größte Herausforderung bei diesem Projekt besteht darin, jeder Wohnung einen Panoramablick auf den See, die Berge und das Schloss von Nyon zu bieten.

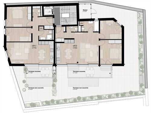
Ein subtiles Spiel mit den Balkon-Loggien wird geschaffen, um jeder Wohnung zu ermöglichen, diese reiche Panorama zu genießen. Die Arbeit mit vorgefertigten Betonelementen verleiht dem großen Südgiebel einen skulpturalen Charakter und lässt gleichzeitig jeden Mieter von einer intimen Außenverlängerung profitieren, die durch das Spiel mit durchbrochenen Seitenwänden noch verstärkt wird. Die zum Giebel hin offene Architektur wurde sorgfältig durchdacht, um sich harmonisch in die bestehende Umgebung einzufügen. Die Wohnungen verfügen über schöne, nach Süden ausgerichtete Wohnräume mit großen Fensterfronten, für eine maximale Sonneneinstrahlung.

Eine kompakte Architektur mit Realisierung und Installation von Dächern mit Photovoltaik- und thermischen Solarmodulen. Einseitige Belüftung. Verwendung von nachhaltigen natürlichen Materialien.

Jahr

2021

Entwickelt von

CCHE Nyon SA

Bauherr

Private Kunde

Typologie

Mehrfamilienhaus mit Mietwohnungen

Programm

Mehrfamilienhaus mit 7 Wohnungen + Parkplatz

Geschossfläche (BGF)

1.193 m2

Volumen (SIA)

3.665 m3

Realisierung

CCHE Nyon SA

Architecture et réalisation de CCHE pour l'immeuble de logement la Colombière 29 Suisse
Architecture et réalisation de CCHE pour l'immeuble de logement la Colombière 29 Suisse
Architecture et réalisation de CCHE pour l'immeuble de logement la Colombière 29 Suisse
Architecture et réalisation de CCHE pour l'immeuble de logement la Colombière 29 Suisse
Architecture et réalisation de CCHE pour l'immeuble de logement la Colombière 29 Suisse
Architecture et réalisation de CCHE pour l'immeuble de logement la Colombière 29 Suisse
Architecture et réalisation de CCHE pour l'immeuble de logement la Colombière 29 Suisse
Architecture et réalisation de CCHE pour l'immeuble de logement la Colombière 29 Suisse
Architecture et réalisation de CCHE pour l'immeuble de logement la Colombière 29 Suisse

Die Wahl der Innenausstattungen fiel auf nüchterne und natürliche Materialien, um die Zeit mit sanften Farben zu überdauern, damit sich jeder Mieter die Räume aneignen kann.

Architecture et réalisation de CCHE pour l'immeuble de logement la Colombière 29 Suisse
Architecture et réalisation de CCHE pour l'immeuble de logement la Colombière 29 Suisse
Colombière 29 - Page projet - vue bas/haut
Architecture et réalisation de CCHE pour l'immeuble de logement la Colombière 29 Suisse
Architecture et réalisation de CCHE pour l'immeuble de logement la Colombière 29 Suisse
Architecture et réalisation de CCHE pour l'immeuble de logement la Colombière 29 Suisse
Zurück zu Projekte