Colombière 29

Nyon

Situé au cœur de Nyon, en bordure de vieille ville, la parcelle profite d’une situation simplement exceptionnelle. Le défi majeur de ce projet est d’offrir à chaque logement une vue panoramique sur le lac, les montagnes et le château de Nyon.

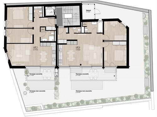
Un jeu subtil avec les balcons-loggias est créé afin de permettre à chaque appartement de jouir de cette vue riche et variée. Le travail sur ces éléments en béton préfabriqué permet d’offrir un caractère sculptural à ce grand pignon sud, tout en faisant bénéficier chaque locataire d’un prolongement extérieur intime, renforcé par le jeu des claustras. L’architecture ouverte sur son pignon a été minutieusement pensée afin de s’intégrer harmonieusement à l’environnement existant. Les logements comportent de belles pièces à vivre orientées sud avec de grandes baies vitrées, pour permettre un ensoleillement maximal.

Une architecture compacte avec réalisation et installation de toiture avec panneaux photovoltaïque et solaire thermique. Ventilation simple-flux. Utilisation de matériaux naturels durables.

Année

2021

Développé par

CCHE Nyon SA

Maître de l'ouvrage

Client privé

Typologie

Immeuble locatif

Programme

Immeuble locatif de 7 appartements + parking

Surface (SBP)

1'193 m2

Volume (SIA)

3'665 m3

Réalisation

CCHE Nyon SA

Architecture et réalisation de CCHE pour l'immeuble de logement la Colombière 29 Suisse
Architecture et réalisation de CCHE pour l'immeuble de logement la Colombière 29 Suisse
Architecture et réalisation de CCHE pour l'immeuble de logement la Colombière 29 Suisse
Architecture et réalisation de CCHE pour l'immeuble de logement la Colombière 29 Suisse
Architecture et réalisation de CCHE pour l'immeuble de logement la Colombière 29 Suisse
Architecture et réalisation de CCHE pour l'immeuble de logement la Colombière 29 Suisse
Architecture et réalisation de CCHE pour l'immeuble de logement la Colombière 29 Suisse
Architecture et réalisation de CCHE pour l'immeuble de logement la Colombière 29 Suisse
Architecture et réalisation de CCHE pour l'immeuble de logement la Colombière 29 Suisse

Le choix des finitions intérieures est traité avec des matériaux sobres et naturels pour durer dans le temps avec des couleurs douces pour permettre à chaque locataire de s’approprier les espaces.

Architecture et réalisation de CCHE pour l'immeuble de logement la Colombière 29 Suisse
Architecture et réalisation de CCHE pour l'immeuble de logement la Colombière 29 Suisse
Colombière 29 - Page projet - vue bas/haut
Architecture et réalisation de CCHE pour l'immeuble de logement la Colombière 29 Suisse
Architecture et réalisation de CCHE pour l'immeuble de logement la Colombière 29 Suisse
Architecture et réalisation de CCHE pour l'immeuble de logement la Colombière 29 Suisse
Retour aux projets