Bricks competition

Biel

Development of a sustainable neighbourhood in Biel consisting of 4 residential blocks, with particular attention paid to the interlocking of outdoor spaces on different scales, with a variety of atmospheres and modes of appropriation.

The richness of the proposal stems from our "culture of collaboration", which brings together a wide range of skills (25 professions within CCHE) at every stage of the vision’s development - architects, urban planners, landscape architects, geographers, digital artists, sustainability experts - and its concretisation through communication media (BIM, graphic design, communications, videography) to unite the project’s different stakeholders.

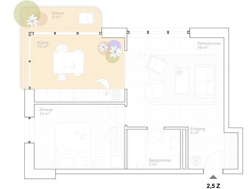
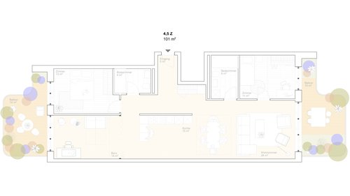
Thanks to our internally-developed methodologies (megatrends, socio-spatial strategy), our passion for the way we live and inhabit the city drives us to question the profound changes taking place in our society. In this district, this is reflected in different ways of living and the concept of living together (4-season kitchen, maisonettes, hobby rooms, flexible bedrooms, joker room, LEA housing) which meet the needs of future tenants.

Year

2022

Developed by

CCHE Lausanne SA, CCHE Zürich AG

Client

Bricks AG

Typology

Residential area

Program

Residential units: 4,4180 m2 SPd, day nursery: 300 m2, communal room: 100 m2, shops: 1,400 m2

Procedure

MEP (Parallel study mandate)

Floor area (GFA)

46'000 m2

Concours d'urbanisme et d'architecture de CCHE pour Bricks à Bienne Suisse
Concours d'urbanisme et d'architecture de CCHE pour Bricks à Bienne Suisse
Concours d'urbanisme et d'architecture de CCHE pour Bricks à Bienne Suisse
Concours d'urbanisme et d'architecture de CCHE pour Bricks à Bienne Suisse
Concours d'urbanisme et d'architecture de CCHE pour Bricks à Bienne Suisse
Concours d'urbanisme et d'architecture de CCHE pour Bricks à Bienne Suisse
Concours d'urbanisme et d'architecture de CCHE pour Bricks à Bienne Suisse

Activate sound at bottom right of video

Watch the project video

Back to projects