Bricks-Wettbewerb

Biel

Entwicklung eines nachhaltigen Quartiers in Biel, das aus 4 Wohnblöcken besteht, mit besonderer Sorgfalt für die Verschachtelung der Außenräume in verschiedenen Maßstäben mit unterschiedlichen Atmosphären und Aneignungsarten.

Der Reichtum des Vorschlags ergibt sich aus unserer „Kultur der Zusammenarbeit“, die ein breites Spektrum an Kompetenzen (25 Berufe innerhalb von CCHE) in jeder Phase der Entwicklung einer Vision - Architekt, Stadtplaner, Landschaftsarchitekt, Geograf, Digital- und Nachhaltigkeitsexperten - und ihrer Konkretisierung durch Kommunikationsmedien (BIM, Grafiker, Kommunikation, Videografie) vereint, um die Akteure um ein Projekt zu vereinen.

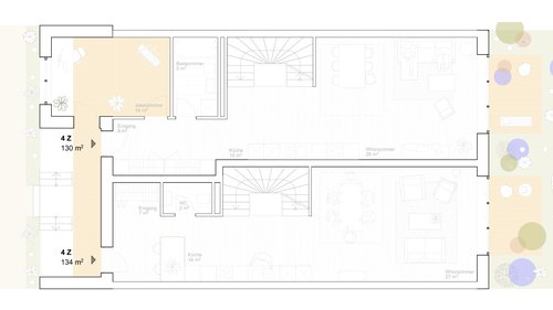
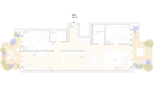
Unsere Leidenschaft für die Art und Weise, wie wir in der Stadt leben und wohnen, lässt uns die tiefgreifenden Veränderungen unserer Gesellschaft mithilfe unserer intern entwickelten Methoden (Megatrends, sozialräumliche Strategie) hinterfragen, die sich für dieses Viertel in vielfältigen Wohn- und Lebensformen konkretisieren (4-Jahreszeiten-Küche, Maisonetten, Hobbyraum, flexibles Zimmer, Joker Room, LEA-Wohnungen), die den Bedürfnissen der Mieter von morgen entsprechen.

Jahr

2022

Entwickelt von

CCHE Lausanne SA, CCHE Zürich AG

Bauherr

Bricks AG

Typologie

Wohnviertel

Programm

Wohnungen: 4.418 m2 BGF, Kinderkrippe: 300 m2, Gemeinschaftsraum: 100 m2, Geschäfte: 1.400 m2

Verfahren

MEP (Mandat für eine parallele Studie)

Geschossfläche (BGF)

46.000 m2

Concours d'urbanisme et d'architecture de CCHE pour Bricks à Bienne Suisse
Concours d'urbanisme et d'architecture de CCHE pour Bricks à Bienne Suisse
Concours d'urbanisme et d'architecture de CCHE pour Bricks à Bienne Suisse
Concours d'urbanisme et d'architecture de CCHE pour Bricks à Bienne Suisse
Concours d'urbanisme et d'architecture de CCHE pour Bricks à Bienne Suisse
Concours d'urbanisme et d'architecture de CCHE pour Bricks à Bienne Suisse
Concours d'urbanisme et d'architecture de CCHE pour Bricks à Bienne Suisse

Aktivieren Sie den Ton unten rechts im Video.

Projektvideo ansehen

Zurück zu Projekte