Concours Bricks

Bienne

Développement d’un quartier durable à Bienne composé de 4 îlots d’habitation, avec un soin particulier pour l’emboitement des espaces extérieurs à différentes échelles avec des ambiances et des modes d’appropriation variés.

La richesse de la proposition découle de notre « culture de la collaboration » qui réunit un large éventail de compétences (25 métiers au sein de CCHE) à chaque étape de l’élaboration d’une vision – architecte, urbanisme, paysagiste, géographe, digital, expert durable - et de sa concrétisation par des supports de communication (BIM, graphiste, communication, vidéographie) pour fédérer les acteurs autour d’un projet.

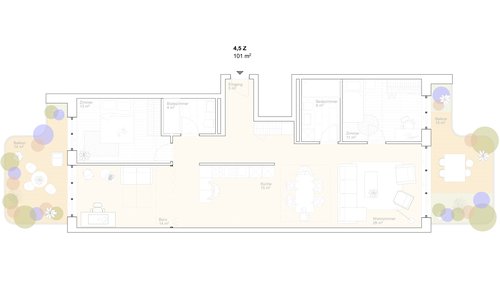
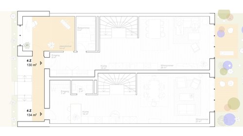
Notre passion pour la façon de vivre et d’habiter la ville, nous pousse à nous questionner sur les changements profonds de notre société grâce à nos méthodologies développées à l’interne (mégatrends, stratégie socio-spatiale) qui se concrétise pour ce quartier par des modes d’habiter et de vivre ensemble variés (cuisine 4 saisons, maisonnettes, hobbyroom, chambre flexible, joker room, logements LEA) répondant aux besoins des locataires de demain.

Année

2022

Développé par

CCHE Lausanne SA, CCHE Zürich AG

Maître de l'ouvrage

Bricks AG

Typologie

Quartier d'habitation

Programme

Logements: 4'4180 m2 SPd, Crêche: 300 m2 , salle commune: 100 m2, commerces: 1'400 m2

Procédure

MEP (Mandat d'étude parallèle)

Surface (SBP)

46'000 m2

Concours d'urbanisme et d'architecture de CCHE pour Bricks à Bienne Suisse
Concours d'urbanisme et d'architecture de CCHE pour Bricks à Bienne Suisse
Concours d'urbanisme et d'architecture de CCHE pour Bricks à Bienne Suisse
Concours d'urbanisme et d'architecture de CCHE pour Bricks à Bienne Suisse
Concours d'urbanisme et d'architecture de CCHE pour Bricks à Bienne Suisse
Concours d'urbanisme et d'architecture de CCHE pour Bricks à Bienne Suisse
Concours d'urbanisme et d'architecture de CCHE pour Bricks à Bienne Suisse

Activer le son en bas à droite de la vidéo

Visionner la vidéo du projet

Retour aux projets