The Hive - Luigia Academy

Meyrin-Satigny

Dans le cadre du développement de The Hive, l’enseigne de restauration italienne « Luigia » a ouvert un restaurant et son premier centre de formation à Meyrin.

Un pavillon d’une surface de 700 m2 situé au cœur du campus "The Hive" dans un écrin de verdure, abrite un restaurant ainsi qu'une école de formation pour l’enseigne de restauration LUIGIA.

Après la réalisation du nouveau siège HP Enterprise/HP Inc, Luigia est la seconde réalisation CCHE sur le campus "The Hive" pour le compte de HIAG.

Année

2020

Développé par

CCHE Lausanne SA

Maître de l'ouvrage

HIAG

Programme

Etablissement de restauration public et école de formation pour l'enseigne LUIGIA

Surface (SBP)

770 m²

Volume (SIA)

3'860 m³

Réalisation

CCHE Lausanne SA

Architecture de CCHE pour le Centre de formation Luigia Academy Suisse
Architecture de CCHE pour le Centre de formation Luigia Academy Suisse

Composé d’un seul niveau, ce pavillon s’intègre au coeur du développement du site THE HIVE. 

D’une matérialité sobre et simple, le verre et le béton compose ce pavillon imaginé comme un lieu de rencontre au coeur du site. La volonté de conserver l’aspect brut et aussi naturel que possible des matériaux a été au coeur de la vision architecturale ce projet.

Architecture de CCHE du Centre de formation La Luigia Suisse

Le traitement de la toiture comme cinquième façade du bâtiment a fait partie intégrante de projet. Son traitement végétal a permis la création d’une zone de biodiversité visible depuis l’ensemble des bâtiments du site.

Architecture de CCHE du Centre de formation La Luigia Suisse
Architecture de CCHE pour le Centre de formation Luigia Academy Suisse
Architecture de CCHE pour le Centre de formation Luigia Academy Suisse

Le béton coulé sur place d’aspect massif contraste avec les vitrages toutes hauteur qui offre une grande transparence et une ouverture sur le site. D’autre part, les grands avant-toits élancé en béton permettent la création de terrasses ombragées.

Architecture de CCHE pour le Centre de formation Luigia Academy Suisse
Luigia - Page contenu - Vue dessus plongeant
Architecture de CCHE du Centre de formation La Luigia Suisse
Architecture de CCHE du Centre de formation La Luigia Suisse
Architecture de CCHE du Centre de formation La Luigia Suisse
Architecture de CCHE du Centre de formation La Luigia Suisse
Architecture de CCHE du Centre de formation La Luigia Suisse
Architecture de CCHE du Centre de formation La Luigia Suisse
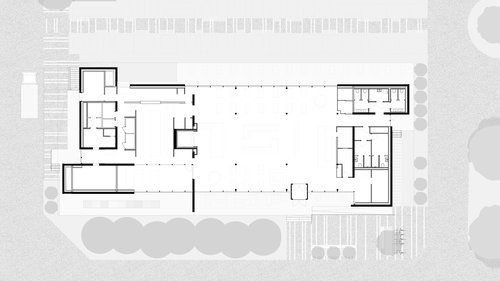
Plan de CCHE du Centre de formation La Luigia Suisse
Plan de CCHE du Centre de formation La Luigia Suisse
Plan de CCHE du Centre de formation La Luigia Suisse

Plan du rez de chaussée 1:200, Coupes transversales

Projet d'aménagement intérieur du centre de formation Luigia

LUIGIA
Architecture de CCHE du Centre de formation La Luigia Suisse
Architecture de CCHE du Centre de formation La Luigia Suisse
Rendu 3D de CCHE pour Luigia
Architecture d'intérieur de CCHE du Centre de formation La Luigia Suisse

Chantier

Chantier - Centre de formation "La Luigia"
Retour aux projets