The Hive - Luigia Academy

Meyrin-Satigny

Im Rahmen der Entwicklung von The Hive eröffnet die italienische Restaurantkette „Luigia“ ein Restaurant und ihr erstes Schulungszentrum in Meyrin.

In einem 700 qm großen Pavillon, der im Herzen des Campus „The Hive“ in einer grünen Umgebung liegt, werden ein Restaurant und eine Ausbildungsschule für das Gastronomieunternehmen LUIGIA untergebracht.

Nach der Realisierung des neuen Hauptsitzes von HP Enterprise/HP Inc. ist Luigia die zweite CCHE-Realisierung auf dem Campus „The Hive“ für HIAG.

Jahr

2020

Entwickelt von

CCHE Lausanne SA

Bauherr

HIAG

Programm

Öffentlicher Gastronomiebetrieb und Ausbildungsschule für die Marke LUIGIA

Geschossfläche (BGF)

770 qm

Volumen (SIA)

3.860 m³

Realisierung

CCHE Lausanne SA

Architecture de CCHE pour le Centre de formation Luigia Academy Suisse
Architecture de CCHE pour le Centre de formation Luigia Academy Suisse

Dieser Pavillon besteht aus einer einzigen Ebene und ist in das Herzstück der Entwicklung des THE HIVE-Geländes integriert.

Mit einer nüchternen und einfachen Materialität bilden Glas und Beton diesen Pavillon, der als Treffpunkt im Herzen des Ortes gedacht ist. Der Wille, den rohen Aspekt und die Natürlichkeit der Materialien so weit wie möglich zu erhalten, stand im Mittelpunkt der architektonischen Vision dieses Projekts.

Architecture de CCHE du Centre de formation La Luigia Suisse

Die Behandlung des Daches als fünfte Fassade des Gebäudes war ein integraler Bestandteil des Projekts. Die pflanzliche Behandlung ermöglichte die Schaffung einer Biodiversitätszone, die von allen Gebäuden auf dem Gelände aus sichtbar ist.

Architecture de CCHE du Centre de formation La Luigia Suisse
Architecture de CCHE pour le Centre de formation Luigia Academy Suisse
Architecture de CCHE pour le Centre de formation Luigia Academy Suisse

Auf einer einzigen Ebene, besteht die Materialität dieses Pavillons hauptsächlich aus Ortbeton. Große Vordächer ermöglichen die Schaffung von schattigen Terrassen. Im Zentrum des zukünftigen Gesamtkonzepts gelegen, soll dieser Ort der Begegnung und des Austauschs das Herzstück des Geländes bilden.

Architecture de CCHE pour le Centre de formation Luigia Academy Suisse
Luigia - Page contenu - Vue dessus plongeant
Architecture de CCHE du Centre de formation La Luigia Suisse
Architecture de CCHE du Centre de formation La Luigia Suisse
Architecture de CCHE du Centre de formation La Luigia Suisse
Architecture de CCHE du Centre de formation La Luigia Suisse
Architecture de CCHE du Centre de formation La Luigia Suisse
Architecture de CCHE du Centre de formation La Luigia Suisse
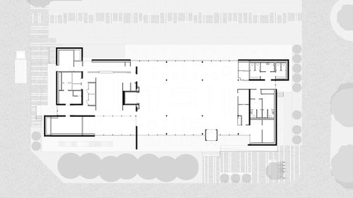
Plan de CCHE du Centre de formation La Luigia Suisse
Plan de CCHE du Centre de formation La Luigia Suisse
Plan de CCHE du Centre de formation La Luigia Suisse

Grundriss Erdgeschoss 1:200, Querschnitte

Innenarchitekturprojekt für das Ausbildungszentrum Luigia

LUIGIA
Architecture de CCHE du Centre de formation La Luigia Suisse
Architecture de CCHE du Centre de formation La Luigia Suisse
Rendu 3D de CCHE pour Luigia
Architecture d'intérieur de CCHE du Centre de formation La Luigia Suisse

Baustelle

Chantier - Centre de formation "La Luigia"
Zurück zu Projekte