The Hive - Luigia Academy

Meyrin-Satigny

As part of the development of The Hive, the Italian restaurant chain "Luigia" has opened a restaurant and its first training center in Meyrin.

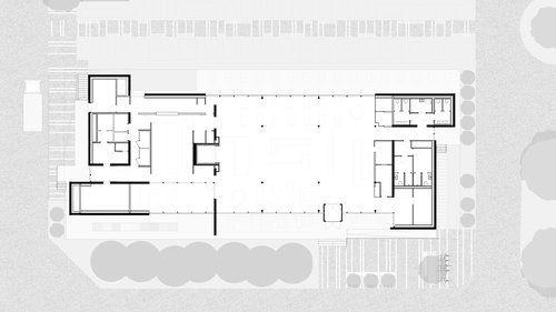
A 700 m2 pavilion located in the heart of "The Hive" campus in a green setting houses a restaurant and a training school for the LUIGIA restaurant chain.

After the realization of the new HP Enterprise/HP Inc headquarters, Luigia is the second CCHE realization on "The Hive" campus for HIAG.

Year

2020

Developed by

CCHE Lausanne SA

Client

HIAG

Program

Public catering establishment and training school for the LUIGIA brand name

Floor area (GFA)

770 m²

Volume (SIA)

3,860 m³

Realization

CCHE Lausanne SA

Architecture de CCHE pour le Centre de formation Luigia Academy Suisse
Architecture de CCHE pour le Centre de formation Luigia Academy Suisse

Composed of a single level, this pavilion is integrated into the heart of the development of THE HIVE site.

With a sober and simple materiality, glass and concrete compose this pavilion imagined as a meeting place in the heart of the site. The will to keep the raw aspect and as natural as possible of the materials was at the heart of the architectural vision of this project.

Architecture de CCHE du Centre de formation La Luigia Suisse

The treatment of the roof as a fifth façade of the building was an integral part of the project. Its vegetal treatment allowed the creation of a biodiversity zone visible from all the buildings of the site.

Architecture de CCHE du Centre de formation La Luigia Suisse
Architecture de CCHE pour le Centre de formation Luigia Academy Suisse
Architecture de CCHE pour le Centre de formation Luigia Academy Suisse

The concrete cast in place of massive aspect contrasts with the full height glazing which offers a great transparency and an opening on the site. On the other hand, the large slender concrete eaves allow the creation of shaded terraces.

Architecture de CCHE pour le Centre de formation Luigia Academy Suisse
Luigia - Page contenu - Vue dessus plongeant
Architecture de CCHE du Centre de formation La Luigia Suisse
Architecture de CCHE du Centre de formation La Luigia Suisse
Architecture de CCHE du Centre de formation La Luigia Suisse
Architecture de CCHE du Centre de formation La Luigia Suisse
Architecture de CCHE du Centre de formation La Luigia Suisse
Architecture de CCHE du Centre de formation La Luigia Suisse
Plan de CCHE du Centre de formation La Luigia Suisse
Plan de CCHE du Centre de formation La Luigia Suisse
Plan de CCHE du Centre de formation La Luigia Suisse

Ground floor plan 1:200, Cross sections

Luigia Training Center Interior Design Project

LUIGIA
Architecture de CCHE du Centre de formation La Luigia Suisse
Architecture de CCHE du Centre de formation La Luigia Suisse
Rendu 3D de CCHE pour Luigia
Architecture d'intérieur de CCHE du Centre de formation La Luigia Suisse

Jobsite

Chantier - Centre de formation "La Luigia"
Back to projects