SEIC

Gland

Ce vaste projet de bâtiment multifonctionnel est constitué de plusieurs phases alliant rénovation et construction.

L’enjeu principal résidait dans la vision globale qu’il a fallu porter au projet, malgré le phasage des différentes interventions nécessaires pour unifier le bâtiment, qui regroupe une grande mixité d'usages: bureaux administratifs et d’exploitation de la SEIC, showroom, halle de stockage et ateliers, studio d’enregistrement pour Mediago/NRTV, nouvel ORP/CCh Nyon-Rolle, parking souterrain, etc.

Année

2017 phase 1, 2019 phase 2

Développé par

CCHE Nyon SA

Maître de l'ouvrage

Société Electrique Intercommunale de la Côte

Typologie

Rénovation et reconstruction

Programme

Un bâtiment multifonctionnel

Surface (SBP)

12'000 m²

Volume (SIA)

35'000 m³

Architecture de CCHE du bâtiment multifonctionnel SEIC Suisse

SEIC Phase 1 : Rénovation du bâtiment administratif

Le projet comprend différentes phases : la transformation intérieure de la partie est (côté avenue du Mont-Blanc) en locaux administratifs, l’aménagement intérieur du show-room de la SEIC, la démolition de l’ancienne halle remplacée par de nouveaux bureaux et ateliers, et des nouvelles façades unifiant l’ensemble.

Le bâtiment existant, situé dans la zone industrielle de Gland, est composé d’un assemblage de différentes parties sans cohérence, rajoutées au fil du temps et des besoins de l’ancien propriétaire. L’ensemble est entièrement repensé pour répondre aux nouveaux besoins de la SEIC, ainsi qu’au futur visage de cette zone industrielle en pleine mutation.

Architecture de CCHE du bâtiment multifonctionnel SEIC Suisse
Architecture de CCHE du bâtiment multifonctionnel SEIC Suisse
Architecture de CCHE du bâtiment multifonctionnel SEIC Suisse

La façade, largement vitrée afin d’assurer un éclairage optimal de ce bâtiment de forte profondeur, est composée de bandeaux filants en tôle perforée. Ces bandeaux scintillants, dont la perception varie selon l’ensoleillement, la luminosité et l’orientation, contrastent avec les vitrages et les parties en tôle pleine de couleur foncée, et marquent l’unité de l’ensemble.

Architecture de CCHE du bâtiment multifonctionnel SEIC Suisse
Architecture de CCHE du bâtiment multifonctionnel SEIC Suisse

Nouveau bâtiment d’exploitation pour la SEIC avec réalisation d’un studio d’enregistrement pour Mediago/NRTV, de nouveaux locaux pour l’ORP/CCh de Nyon-Rolle et d’un parking souterrain.

Architecture de CCHE du bâtiment multifonctionnel SEIC Suisse
Architecture de CCHE du bâtiment multifonctionnel SEIC Suisse
Architecture de CCHE du bâtiment multifonctionnel SEIC Suisse
Architecture de CCHE du bâtiment multifonctionnel SEIC Suisse
Architecture de CCHE du bâtiment multifonctionnel SEIC Suisse
Architecture de CCHE du bâtiment multifonctionnel SEIC Suisse

Aménagement des nouveaux locaux de l'ORP (Office régional de placement) de la Côte sur la surface locative du 2ème étage de la SEIC

Architecture de CCHE du bâtiment multifonctionnel SEIC Suisse
Architecture de CCHE du bâtiment multifonctionnel SEIC Suisse
Architecture de CCHE du bâtiment multifonctionnel SEIC Suisse
Architecture de CCHE du bâtiment multifonctionnel SEIC Suisse
Architecture de CCHE du bâtiment multifonctionnel SEIC Suisse

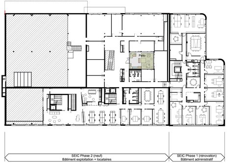
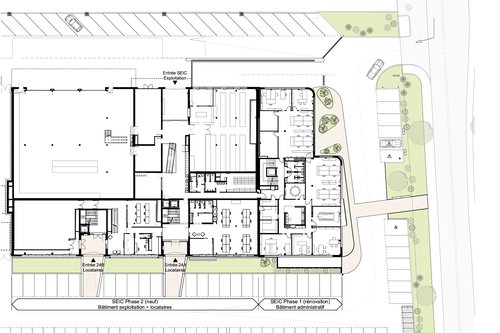
Plans SEIC
Phase 1 : Rénovation du bâtiment administratif
Phase 2 : Nouveau bâtiment d'exploitation et de location

Architecture de CCHE du bâtiment multifonctionnel SEIC Suisse
Architecture de CCHE du bâtiment multifonctionnel SEIC Suisse
Retour aux projets