SEIC

Gland

Dieses umfangreiche multifunktionale Gebäudeprojekt besteht aus mehreren Phasen, die Renovierung und Neubau kombinieren.

Das Hauptproblem war die globale Vision, die trotz der zeitlichen Staffelung der verschiedenen Eingriffe in das Projekt eingebracht werden musste und notwendig war, um das Gebäude mit einer breiten Palette von Nutzungen zu vereinheitlichen. Verwaltungs- und Betriebsbüros der Gruppe SEIC, Showroom, Lagerhalle und Werkstätten, Aufnahmestudio für Mediago/NRTV, neues ORP/CCh Nyon-Rolle, Tiefgarage, usw..

Jahr

2017 Phase 1, 2019 Phase 2

Entwickelt von

CCHE Nyon SA

Bauherr

Société Electrique Intercommunale de la Côte (Interkommunale Elektrizitätsgesellschaft der Küste)

Typologie

Renovierung und Wiederaufbau

Programm

Multifunktionales Gebäude

Geschossfläche (BGF)

12.000 qm

Volumen (SIA)

35.000 m³

Architecture de CCHE du bâtiment multifonctionnel SEIC Suisse

SEIC Phase 1: Renovierung des Verwaltungsgebäudes

Das Projekt umfasst verschiedene Phasen: die innere Umgestaltung des östlichen Teils (auf der Seite der Avenue du Mont-Blanc) in Verwaltungsräume, die Inneneinrichtung des SEIC-Showrooms, den Abriss der alten Halle, die durch neue Büros und Werkstätten ersetzt wird, und neue Fassaden, die das Ganze vereinen.

Das bestehende Gebäude, das sich in der Industriezone von Gland befindet, besteht aus einer Ansammlung verschiedener Teile ohne Zusammenhang, die im Laufe der Zeit und je nach den Bedürfnissen des früheren Besitzers hinzugefügt wurden. Der gesamte Komplex wurde komplett umgestaltet, um den neuen Bedürfnissen der SEIC sowie dem zukünftigen Aussehen dieser Industriezone, die sich in einem starken Wandel befindet, gerecht zu werden.

Architecture de CCHE du bâtiment multifonctionnel SEIC Suisse
Architecture de CCHE du bâtiment multifonctionnel SEIC Suisse
Architecture de CCHE du bâtiment multifonctionnel SEIC Suisse

Die Fassade, die weitgehend verglast ist, um eine optimale Belichtung des tiefen Gebäudes zu gewährleisten, besteht aus durchgehenden Lochblechblenden. Diese glitzernden Blenden, die je nach Sonneneinstrahlung, Helligkeit und Ausrichtung unterschiedlich wahrgenommen werden, kontrastieren mit den dunkelfarbigen Verglasungen und massiven Blechteilen und markieren die Einheit des Ganzen.

Architecture de CCHE du bâtiment multifonctionnel SEIC Suisse
Architecture de CCHE du bâtiment multifonctionnel SEIC Suisse

Neues Betriebsgebäude für die SEIC mit dem Bau eines Aufnahmestudios für Mediago/NRTV, neue Räumlichkeiten für die ORP/CCh von Nyon-Rolle und eine Tiefgarage.

Architecture de CCHE du bâtiment multifonctionnel SEIC Suisse
Architecture de CCHE du bâtiment multifonctionnel SEIC Suisse
Architecture de CCHE du bâtiment multifonctionnel SEIC Suisse
Architecture de CCHE du bâtiment multifonctionnel SEIC Suisse
Architecture de CCHE du bâtiment multifonctionnel SEIC Suisse
Architecture de CCHE du bâtiment multifonctionnel SEIC Suisse

Einrichtung der neuen Räumlichkeiten des ORP (Office régional de placement) von La Côte im 2. Stock des SEIC

Architecture de CCHE du bâtiment multifonctionnel SEIC Suisse
Architecture de CCHE du bâtiment multifonctionnel SEIC Suisse
Architecture de CCHE du bâtiment multifonctionnel SEIC Suisse
Architecture de CCHE du bâtiment multifonctionnel SEIC Suisse
Architecture de CCHE du bâtiment multifonctionnel SEIC Suisse

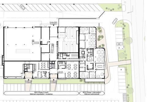
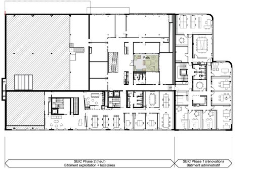
Pläne SEIC
Phase 1: Renovierung des Verwaltungsgebäudes
Phase 2: Neues Betriebs- und Vermietungsgebäude

Architecture de CCHE du bâtiment multifonctionnel SEIC Suisse
Architecture de CCHE du bâtiment multifonctionnel SEIC Suisse
Zurück zu Projekte