SEIC

Gland

This vast multifunctional building project consists of several phases combining renovation and construction.

The main challenge was the overall vision that had to be brought to the project, despite the phasing of the various interventions required to unify the building, which has a wide range of uses: administrative and operating offices of SEIC, showroom, storage hall and workshops, recording studio for Mediago/NRTV, new ORP/CCh Nyon-Rolle, underground parking, etc.

Year

2017 phase 1, 2019 phase 2

Developed by

CCHE Nyon SA

Client

Société Electrique Intercommunale de la Côte (Inter-municipal Electrical Company of the Coast)

Typology

Renovation and reconstruction

Program

A multifunctional building

Floor area (GFA)

12,000 m²

Volume (SIA)

35,000 m³

Architecture de CCHE du bâtiment multifonctionnel SEIC Suisse

SEIC Phase 1 : Renovation of the Administration Building

The project includes different phases: the interior transformation of the eastern part (on the Avenue du Mont-Blanc side) into administrative premises, the interior design of the SEIC showroom, the demolition of the old hall replaced by new offices and workshops, and new facades unifying the whole.

The existing building, located in the industrial zone of Gland, is composed of an assembly of different parts without coherence, added over time and according to the needs of the former owner. The whole complex has been completely redesigned to meet the new needs of the SEIC, as well as the future face of this rapidly changing industrial zone.

Architecture de CCHE du bâtiment multifonctionnel SEIC Suisse
Architecture de CCHE du bâtiment multifonctionnel SEIC Suisse
Architecture de CCHE du bâtiment multifonctionnel SEIC Suisse

The facade, largely glazed to ensure optimal lighting of this deep building, is composed of perforated sheet metal strips. These glittering strips, whose perception varies according to sunlight, brightness and orientation, contrast with the glazing and the dark-coloured solid sheet metal parts and mark the unity of the whole.

Architecture de CCHE du bâtiment multifonctionnel SEIC Suisse
Architecture de CCHE du bâtiment multifonctionnel SEIC Suisse

New operating building for the SEIC with the realization of a recording studio for Mediago/NRTV, new premises for the ORP/CCh of Nyon-Rolle and an underground parking lot.

Architecture de CCHE du bâtiment multifonctionnel SEIC Suisse
Architecture de CCHE du bâtiment multifonctionnel SEIC Suisse
Architecture de CCHE du bâtiment multifonctionnel SEIC Suisse
Architecture de CCHE du bâtiment multifonctionnel SEIC Suisse
Architecture de CCHE du bâtiment multifonctionnel SEIC Suisse
Architecture de CCHE du bâtiment multifonctionnel SEIC Suisse

Installation of the new premises of the ORP (Office régional de placement) of La Côte on the 2nd floor of the SEIC

Architecture de CCHE du bâtiment multifonctionnel SEIC Suisse
Architecture de CCHE du bâtiment multifonctionnel SEIC Suisse
Architecture de CCHE du bâtiment multifonctionnel SEIC Suisse
Architecture de CCHE du bâtiment multifonctionnel SEIC Suisse
Architecture de CCHE du bâtiment multifonctionnel SEIC Suisse

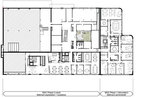
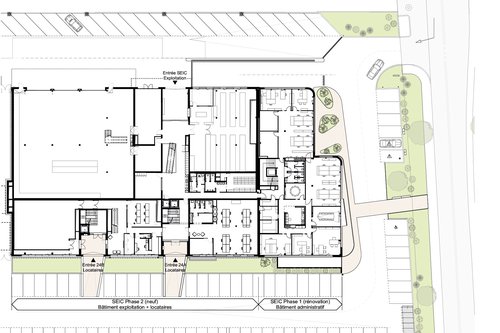
SEIC Plans
Phase 1: Renovation of Administration Building
Phase 2: New Operations Building and Tenants

Architecture de CCHE du bâtiment multifonctionnel SEIC Suisse
Architecture de CCHE du bâtiment multifonctionnel SEIC Suisse
Back to projects