Quartier de la Croix Nord

Mont-sur-Lausanne

Bien desservi par les grands axes routiers avoisinants, le quartier de la Croix Nord constitue un site stratégique de l’Ouest du Mont-sur-Lausanne. Ses caractéristiques paysagères fortes créent diverses possibilités spatiales et récréatives dans le quartier et le site propose ainsi un cadre naturel, vivant, changeant selon les saisons et avec lequel la communauté peut interagir. Les aspects paysagers et naturels de la zone constituent un point de départ fort et distinctif pour l’architecture.

La vision du développement du site développée conjointement par CCHE Lausanne et CCHE Porto est basée sur la création d'espaces de vie diversifiés axés sur la proximité de la nature, le bien-être et un fort sentiment de communauté. Inspirés par le site existant, les éléments paysagers viennent façonner l'identité architecturale du quartier dans son ensemble. Le futur quartier résidentiel profite du décalage de niveaux pour s’implanter sur un socle végétal qui abrite les véhicules, tout en respectant les exigences du Plan de Quartier. Pour une empreinte minimale au sol, les volumes proposent une échelle intermédiaire sous forme d’un habitat multifamilial superposé.

La volumétrie est taillée, vidée et ensuite groupée par modules identiques et rationnels, articulés entre les secteurs en trois moments paysagers hiérarchisés du plus intimiste au plus collectif. Les vides entre chaque appartement sont façonnés pour créer des espaces extérieurs privatifs mais toujours en contact visuel entre le logement et la vie de la rue.

Année

2022

Procédure

Concours en procédure sélective

Développé par

CCHE Lausanne SA
CCHE Porto Lda

Maître de l'ouvrage

Realitim II SPCP

Typologie

Quartier d'habitation

Programme

Logement

Surface (SBP)

6'958 m2

Volume (SIA)

22'056 m3

Concours architecture de la Croix du Nord Suisse
Concours architecture de la Croix du Nord Suisse
Concours architecture de la Croix du Nord Suisse

Ces espaces, associés aux jardins ou terrasses individuels, créent de l'intimité tout en offrant la possibilité de participer à la vie de la communauté et d’amener de la verdure à tous les étages.

Les typologies sont variées, permettant des configurations flexibles, clairement orientées vers le paysage, ce qui donne l'impression de vivre dans la nature. Ces variations volumétriques s’articulent entre elles et attribuent à chaque groupe de logement une identité unique, réduisant l'échelle du bâti et encourageant un sentiment de communauté au sein des habitants.

Concours architecture de la Croix du Nord Suisse

Production photovoltaïque et solaire, toiture végétalisée, façade en crépi, façade en béton pré-fabriqué, plancher rez-de-chaussée, dalle sous-sol communs, dalle Abri PC, citerne enterrée.

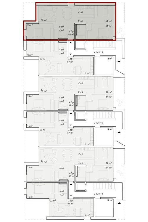
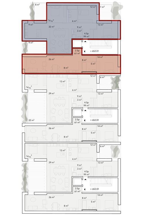
Concours de la Croix du Nord - Page projet - Plans
Concours architecture de la Croix du Nord Suisse
Concours architecture de la Croix du Nord Suisse
Concours architecture de la Croix du Nord Suisse

Plans étages types, typologie 4.5 pièces

Retour aux projets