Quartier de la Croix Nord

Mont-sur-Lausanne

Well served by the major roads in the vicinity, the Croix Nord district is a strategic site in the west of Mont-sur-Lausanne. Its strong landscape features create a variety of spatial and recreational opportunities in the neighbourhood and the site offers a natural, living, seasonally changing setting with which the community can interact. The landscape and natural aspects of the area provide a strong and distinctive starting point for the architecture.

The vision for the development of the site developed jointly by CCHE Lausanne and CCHE Porto is based on the creation of diversified living spaces focused on proximity to nature, well-being and a strong sense of community. Inspired by the existing site, the landscape elements shape the architectural identity of the whole neighbourhood. The future residential area takes advantage of the difference in levels to establish itself on a planted base that shelters vehicles, while respecting the requirements of the Neighbourhood Plan. For a minimal footprint, the volumes propose an intermediate scale in the form of a stacked multi-family dwelling.

The volumetry is cut, emptied and then grouped in identical and rational modules, articulated between the sectors in three hierarchical landscaped moments from the most intimate to the most collective. The gaps between each flat are shaped to create private outdoor spaces but always in visual contact between the dwelling and street life.

Year

2022

Procedure

Competition in selective procedure

Developed by

CCHE Lausanne SA
CCHE Porto Lda

Client

Realitim II SPCP

Typology

Residential area

Program

Housing

Floor area (GFA)

6'958 m2

Volume (SIA)

22'056 m3

Concours architecture de la Croix du Nord Suisse
Concours architecture de la Croix du Nord Suisse
Concours architecture de la Croix du Nord Suisse

These spaces, combined with individual gardens or terraces, create privacy while offering the opportunity to participate in community life and bring greenery to all floors.

The typologies are varied, allowing for flexible configurations, clearly oriented towards the landscape, giving the impression of living in nature. These volumetric variations articulate with each other and give each group of dwellings a unique identity, reducing the scale of the building and encouraging a sense of community among the inhabitants.

Concours architecture de la Croix du Nord Suisse

Photovoltaic and solar production, green roof, rendered facade, prefabricated concrete facade, ground floor, common basement slab, PC shelter slab, underground cistern.

Concours de la Croix du Nord - Page projet - Plans
Concours architecture de la Croix du Nord Suisse
Concours architecture de la Croix du Nord Suisse
Concours architecture de la Croix du Nord Suisse

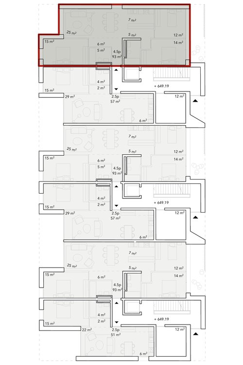
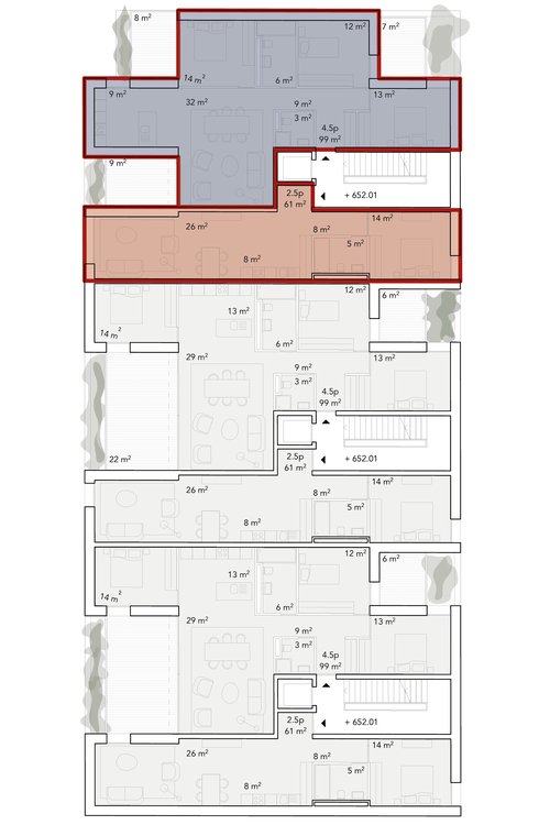
Typical floor plans, 4.5 room typology

Back to projects