Quartier de la Croix Nord

Mont-sur-Lausanne

Das Quartier de la Croix Nord ist gut an die umliegenden Hauptverkehrsachsen angebunden und stellt einen strategischen Standort im Westen von Le Mont-sur-Lausanne dar. Seine starken landschaftlichen Merkmale schaffen verschiedene Raum- und Freizeitmöglichkeiten in der Nachbarschaft und der Standort bietet somit eine natürliche, lebendige und sich mit den Jahreszeiten verändernde Umgebung, mit der die Gemeinschaft interagieren kann. Die landschaftlichen und natürlichen Aspekte des Gebiets bilden einen starken und markanten Ausgangspunkt für die Architektur.

Die gemeinsam von CCHE Lausanne und CCHE Porto entwickelte Vision für die Entwicklung des Geländes basiert auf der Schaffung von vielfältigen Lebensräumen, die sich auf Naturnähe, Wohlbefinden und ein starkes Gemeinschaftsgefühl konzentrieren. Inspiriert von der bestehenden Anlage prägen die landschaftlichen Elemente die architektonische Identität des gesamten Viertels. Das zukünftige Wohnviertel nutzt den Höhenunterschied, um sich auf einem begrünten Sockel niederzulassen, der die Fahrzeuge unterbringt und gleichzeitig die Anforderungen des Quartierplans erfüllt. Für einen minimalen Fußabdruck auf dem Boden schlagen die Baukörper einen Zwischenmaßstab in Form eines überlagerten Mehrfamilienhauses vor.

Die Volumetrie ist tailliert, entleert und dann in identischen und rationalen Modulen gruppiert, die zwischen den Sektoren in drei hierarchisch gegliederten Landschaftsmomenten vom intimsten zum kollektivsten gegliedert sind. Die Lücken zwischen den einzelnen Wohnungen sind so geformt, dass private Außenbereiche entstehen, die jedoch immer in Sichtkontakt zwischen der Wohnung und dem Leben auf der Straße stehen.

Jahr

2022

Verfahren

Wettbewerb im selektiven Verfahren

Entwickelt von

CCHE Lausanne SA
CCHE Porto Lda

Bauherr

Realitim II SPCP

Typologie

Wohnviertel

Programm

Wohnungen

Geschossfläche (BGF)

6.958 qm

Volumen (SIA)

22.056 m3

Concours architecture de la Croix du Nord Suisse
Concours architecture de la Croix du Nord Suisse
Concours architecture de la Croix du Nord Suisse

Diese Bereiche schaffen in Verbindung mit individuellen Gärten oder Terrassen Privatsphäre, bieten aber gleichzeitig die Möglichkeit, am Gemeinschaftsleben teilzunehmen und bringen Grün in alle Stockwerke.

Die Typologien sind vielfältig und ermöglichen flexible Konfigurationen, die sich klar an der Landschaft orientieren und so das Gefühl vermitteln, in der Natur zu leben. Diese volumetrischen Variationen sind miteinander verknüpft und verleihen jeder Wohngruppe eine einzigartige Identität, wodurch der Maßstab der Bebauung verkleinert und ein Gemeinschaftsgefühl unter den Bewohnern gefördert wird.

Concours architecture de la Croix du Nord Suisse

Photovoltaik- und Solaranlage, begrüntes Dach, Putzfassade, vorgefertigte Betonfassade, Erdgeschossboden, Bodenplatte Gemeinschaftsuntergeschoss, Bodenplatte Schutzraum, unterirdische Zisterne.

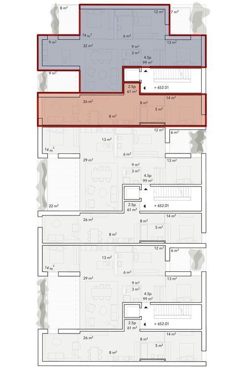
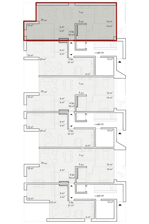
Concours de la Croix du Nord - Page projet - Plans
Concours architecture de la Croix du Nord Suisse
Concours architecture de la Croix du Nord Suisse
Concours architecture de la Croix du Nord Suisse

Musteretagenpläne, Typologie 4,5 Zimmer

Zurück zu Projekte