Quartier Ancienne Papeterie - Les Moulins

Marly

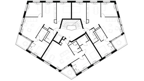
Implanté dans une prairie en continuité du village de Marly, cet ensemble de 7 bâtiments qui s’inspire des principes zéro carbone est associé à la Place des Moulins, à proximité directe de l’ancienne école ménagère. Ces immeubles, représentant un total de 127 logements, sont conçus de manière pentagonale et hexagonale, permettant une variété liée à leur orientation. Cette diversité est accentuée par une matérialité en lien avec leur environnement naturel afin d’ancrer ces bâtiments dans leur appartenance au lieu historique. La prairie se trouvant au pied des sept immeubles favorise la vie sociale tout en conservant la privacité des habitants. Une salle commune située dans l’immeuble F est à disposition des habitants afin qu’ils puissent organiser des évènements divers, tels qu’anniversaires ou simples rencontres de quartier. Construit au sein de l’éco-quartier de l’Ancienne papeterie, labellisé SEED.

Résultat

1er prix

Développé par

CCHE Lausanne SA et Magizan SA

Maître de l'ouvrage

Marly Innovation Center GmbH

Typologie

Quartier d'habitation

Programme

Logements, activité, parking

Procédure

MEP (Mandat d'étude parallèle)

Surface (SBP)

20'050 m2

Volume (SIA)

67'817 m3

Réalisation

CCHE Lausanne SA

Urbanisme et Architecture de CCHE pour le quartier Ancienne Papeterie à Marly Suisse
Urbanisme et Architecture de CCHE pour le quartier Ancienne Papeterie à Marly Suisse
Urbanisme et Architecture de CCHE pour le quartier Ancienne Papeterie à Marly Suisse
Urbanisme et Architecture de CCHE pour le quartier Ancienne Papeterie à Marly Suisse
Urbanisme et Architecture de CCHE pour le quartier Ancienne Papeterie à Marly Suisse

Image 3D du projet

Urbanisme et Architecture de CCHE pour le quartier Ancienne Papeterie à Marly Suisse

Axonométrie, 3D

Urbanisme et Architecture de CCHE pour le quartier Ancienne Papeterie à Marly Suisse
Urbanisme et Architecture de CCHE pour le quartier Ancienne Papeterie à Marly Suisse
Urbanisme et Architecture de CCHE pour le quartier Ancienne Papeterie à Marly Suisse
Urbanisme et Architecture de CCHE pour le quartier Ancienne Papeterie à Marly Suisse

Plans

Urbanisme et Architecture de CCHE pour le quartier Ancienne Papeterie à Marly Suisse
Urbanisme et Architecture de CCHE pour le quartier Ancienne Papeterie à Marly Suisse
Urbanisme et Architecture de CCHE pour le quartier Ancienne Papeterie à Marly Suisse
Retour aux projets