Ancienne Papeterie district : Plug-in 4

Marly

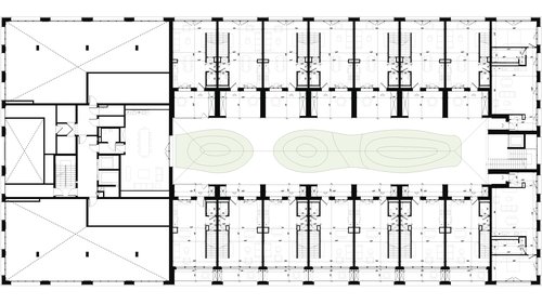
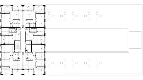
This iconic development, located on the banks of the River Gérine, enjoys a privileged location. It is made up of 2 very distinct elements: a 14-storey tower with 60 apartments and over 1,600 m2 of commercial space, together with a lower section comprising 14 split-level and 4 simplex apartments. The entire development is set around a green inner courtyard.

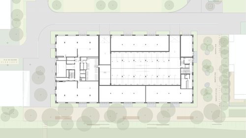
These two elements are based around a common foundation, comprising more than 1,000 m2 of activities and services which give direct access to the Place de la Gérine, where other activities (markets, etc.) could eventually be organised to bring the area to life.

The complex, which benefits from a 100% renewable energy balance, is connected to the new district heating system and equipped with a double-flow ventilation system.

The façade is clad in red brick. The architects chose this material to pay homage to the site's history as a former industrial estate.

Year

2022

Developed by

CCHE Lausanne SA and Magizan SA

Client

Marly Innovation Center

Program

78 housing units

Floor area (GFA)

9,571 m2

Realization

Magizan SA

Urbanisme et Architecture de CCHE pour le quartier Ancienne Papeterie à Marly Suisse
Urbanisme et Architecture de CCHE pour le quartier Ancienne Papeterie à Marly Suisse
Urbanisme et Architecture de CCHE pour le quartier Ancienne Papeterie à Marly Suisse
Urbanisme et Architecture de CCHE pour le quartier Ancienne Papeterie à Marly Suisse
Urbanisme et Architecture de CCHE pour le quartier Ancienne Papeterie à Marly Suisse
Urbanisme et Architecture de CCHE pour le quartier Ancienne Papeterie à Marly Suisse

Axonometry

Urbanisme et Architecture de CCHE pour le quartier Ancienne Papeterie à Marly Suisse
Urbanisme et Architecture de CCHE pour le quartier Ancienne Papeterie à Marly Suisse
Urbanisme et Architecture de CCHE pour le quartier Ancienne Papeterie à Marly Suisse
Urbanisme et Architecture de CCHE pour le quartier Ancienne Papeterie à Marly Suisse
Urbanisme et Architecture de CCHE pour le quartier Ancienne Papeterie à Marly Suisse
Urbanisme et Architecture de CCHE pour le quartier Ancienne Papeterie à Marly Suisse
Urbanisme et Architecture de CCHE pour le quartier Ancienne Papeterie à Marly Suisse
Back to projects