Le Grand-Chemin Nord

Epalinges

L'insertion soignée d'une nouvelle urbanisation mixte dans le milieu naturel

Situé en bordure d’une forêt et d’un cours d’eau, ce site marque la fin d’un quartier d’habitation à Epalinges. La planification supérieure identifie ce secteur comme site à densifier par des affectations mixtes. Les enjeux portent notamment à la création d’une urbanisation complétant le quartier existant et protégeant le milieu naturel.

Année

2020

Développé par

CCHE Lausanne SA

Maître de l'ouvrage

Commune d'Epalinges
Orllati Real Estate SA

Programme

2015 Plan de quartier
2020 53 Appartements et 1'800 m2 de surfaces destinées à l'activité

Surface (SBP)

6'000 m²

Volume (SIA)

32'675 m³

Affectation

Zone mixte (habitation, activités complémentaires)

Densité

IUS 0.9

Réalisation

EDIFEA

Urbanisme et Architecture de CCHE pour le quartier d'habitation Le Grand Chemin Nord Suisse

Plan de quartier

L'insertion soignée d'une nouvelle urbanisation mixte dans le milieu naturel

Situé en bordure d’une forêt et d’un cours d’eau, ce site actuellement non construit marque la fin d’un quartier d’habitation à Epalinges. La planification supérieure identifie ce secteur comme site à densifier par des affectations mixtes. Les enjeux portent notamment à la création d’une urbanisation complétant le quartier existant et protégeant le milieu naturel.

Après un diagnostic du site et de son contexte, CCHE a développé un projet qui combine les objectifs de la planification supérieure et les atouts naturels du site. Le programme contient du logement complété par des locaux pour des activités complémentaires pour environ 100 habitants et emplois.

L’insertion urbaine soignée des futures constructions limite l’impact au sol et sur la silhouette paysagère. Elle assure la protection du milieu naturel et offre un dégagement ensoleillé. Les espaces extérieurs favorisent la biodiversité et la qualité de vie du site. Le parking est construit en sous-sol.

La mise en oeuvre de tous les aspects qualitatifs et quantitatifs du projet est assurée par les documents du Plan de quartier (plans, règlement, rapport 47 OAT, etc.).

L'entier des prestations du plan de quartier est réalisé par CCHE.

Urbanisme de CCHE pour le quartier d'habitation Le Grand Chemin Nord Suisse
Urbanisme et Architecture de CCHE pour le quartier d'habitation Le Grand Chemin Nord Suisse
Urbanisme et Architecture de CCHE pour le quartier d'habitation Le Grand Chemin Nord Suisse

Au vu de l’atmosphère unique, paisible et préservée de ce site très verdoyant et d'une grande qualité paysagère, l’objectif premier est une intégration avec la forêt et le cours d’eau du Flon-Morand qui longent la parcelle au Nord-Est, ainsi qu’avec le milieu bâti existant. Le projet est construit de manière compacte et l’occupation au sol est réduite au maximum, dans le but d’assurer des espaces extérieurs de qualité et la protection du milieu naturel.

Urbanisme et Architecture de CCHE pour le quartier d'habitation Le Grand Chemin Nord Suisse
Le Grand-Chemin Nord - Page projet - Angle

L'ensemble est composé de deux volumes de hauteurs différentes qui se connectent au niveau du rez inférieur par un socle et un parking souterrain avec 81 places.

Les matériaux mis en oeuvre, béton préfabriqué, verre et métal, concourent à la qualité architecturale et constructive, favorisant par ailleurs la mise en évidence du bâtiment par rapport à ses voisins. Entre ces éléments se déroule une façade monolithique spécialement développée pour le projet, valorisée par l’utilisation des éléments en béton préfabriqués qui composent une maille uniforme sur l’ensemble du bâti

Urbanisme et Architecture de CCHE pour le quartier d'habitation Le Grand Chemin Nord Suisse
Urbanisme et Architecture de CCHE pour le quartier d'habitation Le Grand Chemin Nord Suisse
Urbanisme et Architecture de CCHE pour le quartier d'habitation Le Grand Chemin Nord Suisse
Urbanisme et Architecture de CCHE pour le quartier d'habitation Le Grand Chemin Nord Suisse

Les habitants profitent à la fois de l’ambiance urbaine et du calme de la forêt à proximité immédiate. Des ouvertures généreuses sur toute la hauteur permettent à ces deux atmosphères de pénétrer jusqu’au centre du complexe. L’objectif est de proposer un programme contenant en majorité du logement, complété par des locaux pour des activités, dans le but de permettre une mixité d’affectations garantissant ainsi l’équilibre entre l’habitat et l’emploi.

Urbanisme et Architecture de CCHE pour le quartier d'habitation Le Grand Chemin Nord Suisse
Urbanisme et Architecture de CCHE pour le quartier d'habitation Le Grand Chemin Nord Suisse
Urbanisme et Architecture de CCHE pour le quartier d'habitation Le Grand Chemin Nord Suisse
Le Grand-Chemin Nord - Page projet - Arbres
Urbanisme et Architecture de CCHE pour le quartier d'habitation Le Grand Chemin Nord Suisse
Urbanisme et Architecture de CCHE pour le quartier d'habitation Le Grand Chemin Nord Suisse
Urbanisme et Architecture de CCHE pour le quartier d'habitation Le Grand Chemin Nord Suisse

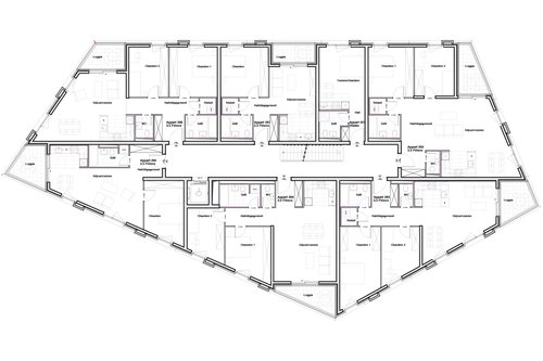
Plan, Coupe AA 1:200, Etage type 1:150

Retour aux projets