Le Grand-Chemin Nord

Epalinges

Gepflegte Integration einer neuen gemischten Urbanisation in die natürliche Umwelt

Am Rande eines Waldes und eines Flusses gelegen, markiert dieses Gelände das Ende eines Wohngebietes in Epalinges. Die übergeordnete Planung weist dieses Gebiet als einen Standort aus, der mit gemischten Zweckbestimmungen verdichtet werden sollte. Dabei geht es unter anderem um die Schaffung einer Stadtentwicklung, die das bestehende Viertel ergänzt und die natürliche Umwelt schützt.

Jahr

2020

Entwickelt von

CCHE Lausanne SA

Bauherr

Gemeinde Epalinges
Orllati Real Estate SA

Programm

2015 Bebauungsplan
2020 53 Wohnungen und 1.800 qm für Aktivitäten vorgesehene Flächen

Geschossfläche (BGF)

6.000 qm

Volumen (SIA)

32.675 m³

Bauzone

Gemischte Zone (Wohnen, ergänzende Aktivitäten)

Dichte

IUS 0.9

Realisierung

EDIFEA

Urbanisme et Architecture de CCHE pour le quartier d'habitation Le Grand Chemin Nord Suisse

Bebauungsplan

Gepflegte Integration einer neuen gemischten Urbanisation in die natürliche Umwelt

Am Rande eines Waldes und eines Flusses gelegen, markiert dieses derzeit unbebaute Gelände das Ende eines Wohngebietes in Epalinges. Die übergeordnete Planung weist dieses Gebiet als einen Standort aus, der mit gemischten Zweckbestimmungn verdichtet werden sollte. Dabei geht es unter anderem um die Schaffung einer Stadtentwicklung, die das bestehende Viertel ergänzt und die natürliche Umwelt schützt.

Nach einer Diagnose des Ortes und seines Umfeldes hat CCHE ein Projekt entwickelt, das die Ziele der übergeordneten Planung und die natürlichen Ressourcen des Ortes miteinander verbindet. Das Bauvorhaben umfasst Wohnungen, die durch Räumlichkeiten für ergänzende Aktivitäten für etwa 100 Einwohner und Arbeitsplätze komplettiert werden.

Die sorgfältige städtebauliche Integration der zukünftigen Bauten begrenzt die Auswirkungen auf den Boden und auf die Landschaftssilhouette. Sie gewährleistet den Schutz der natürlichen Umwelt und bietet Sonneneinfall. Die Außenbereiche fördern die biologische Vielfalt und die Lebensqualität des Standorts. Der Parkplatz befindet sich im Untergeschoss.

Die Umsetzung aller qualitativen und quantitativen Aspekte des Projekts wird durch die Dokumente des Bebauungsplan (Pläne, Statuten, 47 OAT-Bericht usw.) gewährleistet.

Alle Leistungen des Bebauungsplans werden von CCHE erbracht.

Urbanisme de CCHE pour le quartier d'habitation Le Grand Chemin Nord Suisse
Urbanisme et Architecture de CCHE pour le quartier d'habitation Le Grand Chemin Nord Suisse
Urbanisme et Architecture de CCHE pour le quartier d'habitation Le Grand Chemin Nord Suisse

Angesichts der einzigartigen, ruhigen und erhaltenen Atmosphäre dieses sehr grünen Standortes mit hoher landschaftlicher Qualität besteht das Hauptziel darin, sich in den Wald und den Fluss Flon-Morand, die entlang des Grundstücks im Nordosten verlaufen, sowie in die bestehende bebaute Umgebung zu integrieren. Das Projekt ist kompakt gebaut und der Flächenverbrauch wird auf ein Minimum reduziert, mit dem Ziel, qualitativ hochwertige Außenräume und den Schutz der natürlichen Umwelt zu gewährleisten.

Urbanisme et Architecture de CCHE pour le quartier d'habitation Le Grand Chemin Nord Suisse
Le Grand-Chemin Nord - Page projet - Angle

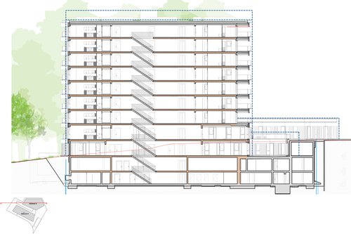
Der Komplex besteht aus zwei unterschiedlich hohen Volumen, die im unteren Erdgeschoss durch einen Sockel und eine Tiefgarage mit 81 Stellplätzen verbunden sind.

Die verwendeten Materialien, vorgefertigter Beton, Glas und Metall, tragen zur architektonischen und konstruktiven Qualität bei und heben das Gebäude von seinen Nachbarn ab. Zwischen diesen Elementen befindet sich eine speziell für das Projekt entwickelte monolithische Fassade, die durch die Verwendung von vorgefertigten Betonelementen aufgewertet wird, die ein einheitliches Geflecht im gesamten Gebäude bilden.

Urbanisme et Architecture de CCHE pour le quartier d'habitation Le Grand Chemin Nord Suisse
Urbanisme et Architecture de CCHE pour le quartier d'habitation Le Grand Chemin Nord Suisse
Urbanisme et Architecture de CCHE pour le quartier d'habitation Le Grand Chemin Nord Suisse
Urbanisme et Architecture de CCHE pour le quartier d'habitation Le Grand Chemin Nord Suisse

Die Einwohner genießen sowohl die städtische Atmosphäre als auch die Ruhe des nahe gelegenen Waldes. Großzügige Öffnungen über die gesamte Höhe lassen diese beiden Atmosphären bis ins Zentrum des Komplexes vordringen. Ziel ist es, ein Bauprogramm vorzuschlagen, das hauptsächlich Wohnungen umfasst, ergänzt durch Räumlichkeiten für Aktivitäten, um eine Nutzungsmischung zu ermöglichen und so ein Gleichgewicht zwischen Wohnen und Arbeiten zu gewährleisten.

Urbanisme et Architecture de CCHE pour le quartier d'habitation Le Grand Chemin Nord Suisse
Urbanisme et Architecture de CCHE pour le quartier d'habitation Le Grand Chemin Nord Suisse
Urbanisme et Architecture de CCHE pour le quartier d'habitation Le Grand Chemin Nord Suisse
Le Grand-Chemin Nord - Page projet - Arbres
Urbanisme et Architecture de CCHE pour le quartier d'habitation Le Grand Chemin Nord Suisse
Urbanisme et Architecture de CCHE pour le quartier d'habitation Le Grand Chemin Nord Suisse
Urbanisme et Architecture de CCHE pour le quartier d'habitation Le Grand Chemin Nord Suisse

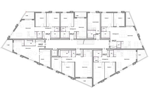
Grundriss, Schnitt AA 1:200, Typisches Stockwerk 1:150

Zurück zu Projekte