Haldimand 18

Lausanne

Transformation d'un bâtiment administratif historique avec la création de 12 appartements.

Ce beau bâtiment, situé en plein centre de Lausanne sur la Rue Haldimand, date de 1880 et est recensé à l’inventaire des monuments historiques. C’est un exemple d’architecture représentatif de son époque, noble autant dans ses proportions et matériaux que dans le soin du détail et des éléments décoratifs.

Le projet consiste en la transformation de 4 étages de bureaux en logement. Le projet a été axé sur la création d’un environnement de vie et un type de logement adaptés au profil des utilisateurs ciblé ; un style de vie urbain, dynamique et novateur.

Un soin particulier a été apporté à la préservation de la structure existante et sa mise en valeur, afin d'éviter les démolitions inutiles. En assumant une touche contemporaine et fraîche, le projet répond aux besoins et normes actuels.

Année

2022

Développé par

CCHE Lausanne SA

Maître de l'ouvrage

Logement idéal - Société coopérative

Typologie

Transformation

Programme

Logement

Surface (SBP)

1'035 m2

Volume (SIA)

3'703 m3

Réalisation

CCHE Lausanne SA

Transformation de CCHE pour le bâtiment historique Haldimand 18 à Lausanne Suisse
Transformation de CCHE pour le bâtiment historique Haldimand 18 à Lausanne Suisse
Transformation de CCHE pour le bâtiment historique Haldimand 18 à Lausanne Suisse

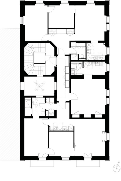
Plan de situation , étage type

Transformation de CCHE pour le bâtiment historique Haldimand 18 à Lausanne Suisse
Transformation de CCHE pour le bâtiment historique Haldimand 18 à Lausanne Suisse
Transformation de CCHE pour le bâtiment historique Haldimand 18 à Lausanne Suisse
Transformation de CCHE pour le bâtiment historique Haldimand 18 à Lausanne Suisse
Transformation de CCHE pour le bâtiment historique Haldimand 18 à Lausanne Suisse
Transformation de CCHE pour le bâtiment historique Haldimand 18 à Lausanne Suisse
Transformation de CCHE pour le bâtiment historique Haldimand 18 à Lausanne Suisse
Transformation de CCHE pour le bâtiment historique Haldimand 18 à Lausanne Suisse
Transformation de CCHE pour le bâtiment historique Haldimand 18 à Lausanne Suisse
Transformation de CCHE pour le bâtiment historique Haldimand 18 à Lausanne Suisse
Transformation de CCHE pour le bâtiment historique Haldimand 18 à Lausanne Suisse
Transformation de CCHE pour le bâtiment historique Haldimand 18 à Lausanne Suisse

Le mobile qui trône au cœur de la cour intérieure confère à l'endroit un statut particulier, établissant ainsi une harmonie visuelle avec les logements en reprenant leurs codes couleurs.

Transformation de CCHE pour le bâtiment historique Haldimand 18 à Lausanne Suisse
Transformation de CCHE pour le bâtiment historique Haldimand 18 à Lausanne Suisse
Retour aux projets