Haldimand 18

Lausanne

Umbau eines historischen Verwaltungsgebäudes mit der Schaffung von 12 Wohnungen.

Dieses schöne Gebäude im Zentrum von Lausanne in der Rue Haldimand stammt aus dem Jahr 1880 und ist im Inventar der historischen Denkmäler verzeichnet. Es ist ein repräsentatives Beispiel für die Architektur seiner Zeit, edel sowohl in seinen Proportionen und Materialien als auch in der Liebe zum Detail und den dekorativen Elementen.

Das Projekt umfasst die Umwandlung von vier Stockwerken Bürofläche in Wohnraum. Der Schwerpunkt des Projekts lag auf der Schaffung eines Lebensumfelds und einer Art von Wohnraum, die dem angestrebten Nutzerprofil entsprechen; einem urbanen, dynamischen und innovativen Lebensstil.

Besondere Sorgfalt wurde dem Erhalt und der Aufwertung der bestehenden Struktur gewidmet, um unnötige Abrisse zu vermeiden. Durch die Annahme einer zeitgenössischen und frischen Note entspricht das Projekt den heutigen Bedürfnissen und Standards.

Jahr

2022

Entwickelt von

CCHE Lausanne SA

Bauherr

Logement idéal - Société coopérative

Typologie

Transformation

Programm

Wohnen

Geschossfläche (BGF)

1.035 m2

Volumen (SIA)

3.703 m3

Realisierung

CCHE Lausanne SA

Transformation de CCHE pour le bâtiment historique Haldimand 18 à Lausanne Suisse
Transformation de CCHE pour le bâtiment historique Haldimand 18 à Lausanne Suisse
Transformation de CCHE pour le bâtiment historique Haldimand 18 à Lausanne Suisse

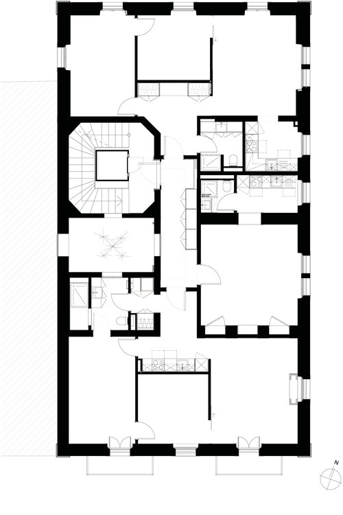
Lageplan , Musterstockwerk

Transformation de CCHE pour le bâtiment historique Haldimand 18 à Lausanne Suisse
Transformation de CCHE pour le bâtiment historique Haldimand 18 à Lausanne Suisse
Transformation de CCHE pour le bâtiment historique Haldimand 18 à Lausanne Suisse
Transformation de CCHE pour le bâtiment historique Haldimand 18 à Lausanne Suisse
Transformation de CCHE pour le bâtiment historique Haldimand 18 à Lausanne Suisse
Transformation de CCHE pour le bâtiment historique Haldimand 18 à Lausanne Suisse
Transformation de CCHE pour le bâtiment historique Haldimand 18 à Lausanne Suisse
Transformation de CCHE pour le bâtiment historique Haldimand 18 à Lausanne Suisse
Transformation de CCHE pour le bâtiment historique Haldimand 18 à Lausanne Suisse
Transformation de CCHE pour le bâtiment historique Haldimand 18 à Lausanne Suisse
Transformation de CCHE pour le bâtiment historique Haldimand 18 à Lausanne Suisse
Transformation de CCHE pour le bâtiment historique Haldimand 18 à Lausanne Suisse

Das Mobile, das im Herzen des Innenhofs thront, verleiht dem Ort einen besonderen Status und stellt eine visuelle Harmonie mit den Wohnungen her, indem es deren Farbcodes aufgreift.

Transformation de CCHE pour le bâtiment historique Haldimand 18 à Lausanne Suisse
Transformation de CCHE pour le bâtiment historique Haldimand 18 à Lausanne Suisse
Zurück zu Projekte