Haldimand 18

Lausanne

Conversion of an historic office building to create 12 apartments.

This beautiful building, located in the centre of Lausanne on Rue Haldimand, dates back to 1880 and is listed as a historic monument. It is an example of architecture typical of its period, noble in its proportions and materials as much as in its attention to detail and decorative elements.

The project involves converting 4 floors of offices into accommodation. The project focused on creating a living environment and accommodation suited to the target user profile: individuals with an urban, dynamic, and innovative lifestyle.

In order to avoid unnecessary demolition, particular care was taken to preserve and enhance the existing structure. With a fresh, contemporary feel, the project meets today's needs and standards.

Year

2022

Developed by

CCHE Lausanne SA

Client

Logement idéal - Société coopérative

Typology

Transformation

Program

Housing

Floor area (GFA)

1,035 m2

Volume (SIA)

3,703 m3

Realization

CCHE Lausanne SA

Transformation de CCHE pour le bâtiment historique Haldimand 18 à Lausanne Suisse
Transformation de CCHE pour le bâtiment historique Haldimand 18 à Lausanne Suisse
Transformation de CCHE pour le bâtiment historique Haldimand 18 à Lausanne Suisse

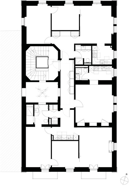
Site plan, typical floor

Transformation de CCHE pour le bâtiment historique Haldimand 18 à Lausanne Suisse
Transformation de CCHE pour le bâtiment historique Haldimand 18 à Lausanne Suisse
Transformation de CCHE pour le bâtiment historique Haldimand 18 à Lausanne Suisse
Transformation de CCHE pour le bâtiment historique Haldimand 18 à Lausanne Suisse
Transformation de CCHE pour le bâtiment historique Haldimand 18 à Lausanne Suisse
Transformation de CCHE pour le bâtiment historique Haldimand 18 à Lausanne Suisse
Transformation de CCHE pour le bâtiment historique Haldimand 18 à Lausanne Suisse
Transformation de CCHE pour le bâtiment historique Haldimand 18 à Lausanne Suisse
Transformation de CCHE pour le bâtiment historique Haldimand 18 à Lausanne Suisse
Transformation de CCHE pour le bâtiment historique Haldimand 18 à Lausanne Suisse
Transformation de CCHE pour le bâtiment historique Haldimand 18 à Lausanne Suisse
Transformation de CCHE pour le bâtiment historique Haldimand 18 à Lausanne Suisse

The mobile at the heart of the courtyard gives the area a special feel, creating a visual harmony with the flats by echoing their color palette.

Transformation de CCHE pour le bâtiment historique Haldimand 18 à Lausanne Suisse
Transformation de CCHE pour le bâtiment historique Haldimand 18 à Lausanne Suisse
Back to projects