Quai de Copet 5

Vevey

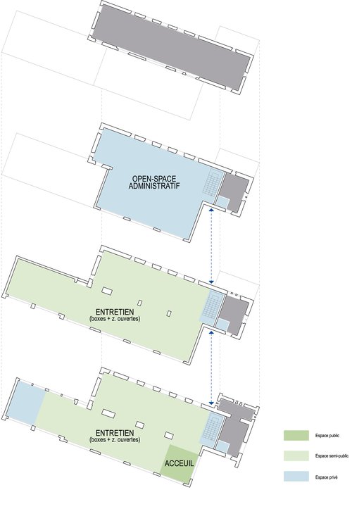
Dressé au bord de la Veveyse, cette ancienne sous-station de transformation électrique, construite en 1909, est un vestige du mouvement Heimatstil. La transformation de cet édifice avait pour but d'accueillir des espaces administratifs dédiés à l'Office régional de placement de Vevey, ainsi que quatre studios, en lieu et place de deux appartements situés au dernier niveau. Le respect du bâti et des recommandations de Monuments historiques via la conservation et la mise en valeur du bâtiment et de sa modénature était un des enjeu du projet. A l'intérieur, deux circulations verticales distinctes ont dû être imaginées afin de répondre à la mixité du programme. Un ascenseur commun, fonctionnant à clé, offre aux usagés une facilité de déplacement tout en conservant leur privacité. Le concept énergétique se voulait efficient et respectueux, la totalité des fenêtres ont été remplacées, le rez-de-chaussée isolé depuis l’intérieur et le bâtiment est maintenant raccordé au réseau de chauffage à distance.

Année

2021

Développé par

CCHE Lausanne SA
CCHE Nyon SA

Maître de l'ouvrage

Retraites Populaires

Typologie

Bureaux et logements

Programme

Bureaux, cafétéria, réception, 4 studios

Procédure

Mandat direct

Surface (SBP)

1'582 m2

Volume (SIA)

5'443 m3

Réalisation

CCHE Lausanne SA

Transformation et réalisation de CCHE pour le Quai de Copet 5 à Vevey Suisse
Transformation et réalisation de CCHE pour le Quai de Copet 5 à Vevey Suisse
Transformation et réalisation de CCHE pour le Quai de Copet 5 à Vevey Suisse
Transformation et réalisation de CCHE pour le Quai de Copet 5 à Vevey Suisse
Transformation et réalisation de CCHE pour le Quai de Copet 5 à Vevey Suisse
Transformation et réalisation de CCHE pour le Quai de Copet 5 à Vevey Suisse
Transformation et réalisation de CCHE pour le Quai de Copet 5 à Vevey Suisse
Transformation et réalisation de CCHE pour le Quai de Copet 5 à Vevey Suisse
Transformation et réalisation de CCHE pour le Quai de Copet 5 à Vevey Suisse
Transformation et réalisation de CCHE pour le Quai de Copet 5 à Vevey Suisse
Transformation et réalisation de CCHE pour le Quai de Copet 5 à Vevey Suisse

Echelle 1:100 : rez-de-chaussée ,1er étage, 2ème étage

Transformation et réalisation de CCHE pour le Quai de Copet 5 à Vevey Suisse
Transformation et réalisation de CCHE pour le Quai de Copet 5 à Vevey Suisse

Image 3D du projet

Transformation et réalisation de CCHE pour le Quai de Copet 5 à Vevey Suisse
Transformation et réalisation de CCHE pour le Quai de Copet 5 à Vevey Suisse
Retour aux projets