Grand-Rue 14

Rolle

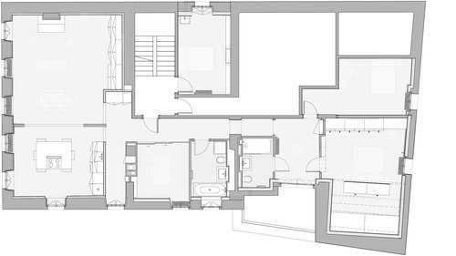
L’appartement niché dans un bâtiment classé en Notes 2 et 4 au cœur de Rolle bénéficie d’un second souffle grâce à sa rénovation globale.

La transformation a métamorphosé l’intérieur de cet appartement en le modernisant et le rendant conforme aux normes actuelles tout en préservant son caractère ancien dans une atmosphère contemporaine.

L’esprit Black & White insufflé par le Maître d’ouvrage fut la ligne conductrice du projet.

L'intérieur de cet appartement a été repensé pour allier fonctionnalité moderne et élégance intemporelle. Des éléments architecturaux d'origine, tels que les boiseries protégées, les fenêtres, la cheminée en marbre et les corniches, coexistent avec les installations actuelles, créant ainsi un équilibre subtil entre l’ancien et le moderne.

Les différents revêtements sélectionnés permettent de capter et créer des jeux de lumière grâce aux nombreuses ouvertures existantes.

Au-delà des transformations liées aux volumes, au confort et à l’esthétique, ce bien a bénéficié d’une rénovation énergétique par une isolation intérieure complète et le remplacement ou restauration des fenêtres. Une mise aux normes de sécurité incendie ainsi que des améliorations phoniques ont également été apportés afin d’apporter confort et pérennité au lieu.

Année

2023

Développé par

CCHE Nyon SA

Maître de l'ouvrage

Client privé

Typologie

Transformation

Procédure

Mandat direct

Surface (SBP)

223 m2

Volume (SIA)

670 m3

Réalisation

CCHE Nyon SA

Transformation de CCHE pour le projet Grand-Rue 14 à Rolle Suisse
Transformation de CCHE pour le projet Grand-Rue 14 à Rolle Suisse
Transformation de CCHE pour le projet Grand-Rue 14 à Rolle Suisse
Transformation de CCHE pour le projet Grand-Rue 14 à Rolle Suisse
Transformation de CCHE pour le projet Grand-Rue 14 à Rolle Suisse
Transformation de CCHE pour le projet Grand-Rue 14 à Rolle Suisse
Transformation de CCHE pour le projet Grand-Rue 14 à Rolle Suisse
Transformation de CCHE pour le projet Grand-Rue 14 à Rolle Suisse
Transformation de CCHE pour le projet Grand-Rue 14 à Rolle Suisse
Transformation de CCHE pour le projet Grand-Rue 14 à Rolle Suisse
Transformation de CCHE pour le projet Grand-Rue 14 à Rolle Suisse
Transformation de CCHE pour le projet Grand-Rue 14 à Rolle Suisse
Transformation de CCHE pour le projet Grand-Rue 14 à Rolle Suisse
Transformation de CCHE pour le projet Grand-Rue 14 à Rolle Suisse
Transformation de CCHE pour le projet Grand-Rue 14 à Rolle Suisse
Transformation de CCHE pour le projet Grand-Rue 14 à Rolle Suisse
Transformation de CCHE pour le projet Troillet à Rolle Suisse

Echelle 1:50 : 2ème étage

Retour aux projets