Grand-Rue 14

Rolle

This apartment, nestled in the heart of Rolle, has been given a new lease of life thanks to its comprehensive renovation. It is listed as a class 2 (object of regional interest) and class 4 (well-integrated object) building.

The transformation has centered around the apartment interior, which has included modernisation and bringing it up to current standards, while taking care to preserve its old-fashioned character in a contemporary setting.

The client’s Black & White inspiration was the guiding principle behind the project.

The interior of this flat has been redesigned to combine modern functionality with timeless elegance. Original architectural elements, such as the protected woodwork, windows, marble fireplace and cornices, coexist with modern fittings, creating a subtle balance between the old and new.

Thanks to the many existing openings, the various coverings capture and create a play of light.

In addition to transforming the volumes, comfort and aesthetics, this property has benefited from energy renovation works including complete interior insulation and the replacement or restoration of windows. To ensure the comfort and longevity of the property, fire safety and soundproofing elements have also been brought up to standard.

Year

2023

Developed by

CCHE Nyon SA

Client

Private client

Typology

Transformation

Procedure

Direct mandate

Floor area (GFA)

223 m2

Volume (SIA)

670 m3

Realization

CCHE Nyon SA

Transformation de CCHE pour le projet Grand-Rue 14 à Rolle Suisse
Transformation de CCHE pour le projet Grand-Rue 14 à Rolle Suisse
Transformation de CCHE pour le projet Grand-Rue 14 à Rolle Suisse
Transformation de CCHE pour le projet Grand-Rue 14 à Rolle Suisse
Transformation de CCHE pour le projet Grand-Rue 14 à Rolle Suisse
Transformation de CCHE pour le projet Grand-Rue 14 à Rolle Suisse
Transformation de CCHE pour le projet Grand-Rue 14 à Rolle Suisse
Transformation de CCHE pour le projet Grand-Rue 14 à Rolle Suisse
Transformation de CCHE pour le projet Grand-Rue 14 à Rolle Suisse
Transformation de CCHE pour le projet Grand-Rue 14 à Rolle Suisse
Transformation de CCHE pour le projet Grand-Rue 14 à Rolle Suisse
Transformation de CCHE pour le projet Grand-Rue 14 à Rolle Suisse
Transformation de CCHE pour le projet Grand-Rue 14 à Rolle Suisse
Transformation de CCHE pour le projet Grand-Rue 14 à Rolle Suisse
Transformation de CCHE pour le projet Grand-Rue 14 à Rolle Suisse
Transformation de CCHE pour le projet Grand-Rue 14 à Rolle Suisse
Transformation de CCHE pour le projet Troillet à Rolle Suisse

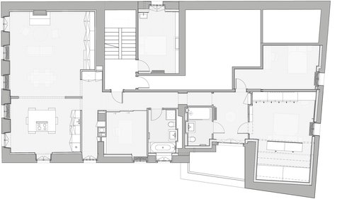
Scale 1:50 : 2nd floor

Back to projects