Extension Balexert

Genève

Étape majeure de la vie du Centre Commercial de Balexert, extension sur la Route de Meyrin pour accueillir le tram. Cette intervention fait suite à plusieurs étapes réalisées par le bureau.

Programme
Pour répondre à la venue du tram Cornavin-Meyrin-Cern, le Centre Balexert veut créer une nouvelle entrée attractive, digne de ce transport public performant. Ce projet encourage le transfert modal de la voiture vers le tram et dynamise une synergie constatée entre usagers des transports collectifs et clients du centre.

Concept
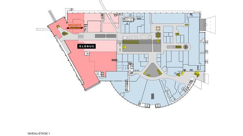
Depuis l’arrêt Balexert, des escalators et ascenseurs conduiront directement sur une plate-forme, couvrant la route de Meyrin au niveau du rez-de-chaussée du centre commercial. Elle se prolongera en passerelle pour rejoindre le quartier de Crozet en toute sécurité.

Située sur cette plateforme, cette nouvelle entrée donnera sur une extension commerciale située en partie sur la route de Meyrin.

Année

2010

Développé par

CCHE Nyon SA (ex-Suard Architectes SA)

Maître de l'ouvrage

Centre Balexert SA

Typologie

Extension

Programme

Extension sur la Route de Meyrin pour accueillir les usagers du tram, création de nouvelles surfaces commerciales

Surface (SBP)

48'700 m²

Volume (SIA)

835'000 m³

Réalisation

CCHE Nyon SA (ex-Suard Architectes SA)

Architecture de CCHE pour l'extension du centre commercial Balexert Suisse
Architecture de CCHE pour l'extension du centre commercial Balexert Suisse
Architecture de CCHE pour l'extension du centre commercial Balexert Suisse
Architecture de CCHE pour l'extension du centre commercial Balexert Suisse
Architecture de CCHE pour l'extension du centre commercial Balexert Suisse
Architecture de CCHE pour l'extension du centre commercial Balexert Suisse
Architecture de CCHE pour l'extension du centre commercial Balexert Suisse
Architecture de CCHE pour l'extension du centre commercial Balexert Suisse
Architecture de CCHE pour l'extension du centre commercial Balexert Suisse
Architecture de CCHE pour l'extension du centre commercial Balexert Suisse
Architecture de CCHE pour l'extension du centre commercial Balexert Suisse
Retour aux projets