Balexert extension

Geneva

Major step in the life of the Balexert Shopping Centre, extension on the Route de Meyrin to accommodate the tram. This intervention follows several stages carried out by the office.

Program
In response to the arrival of the Cornavin-Meyrin-Cern tram, the Balexert Centre wants to create an attractive new entrance, worthy of this efficient public transport. This project encourages a modal shift from the car to the tram and boosts the synergy between public transport users and the centre's customers.

Concept
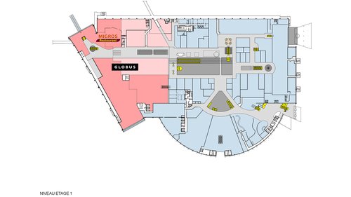
From the Balexert stop, escalators and lifts will lead directly onto a platform, covering the route de Meyrin at the ground floor level of the shopping centre. It will be extended into a footbridge to reach the Crozet district in complete safety.

Located on this platform, this new entrance will open onto a commercial extension located partly on the route de Meyrin.

Year

2010

Developed by

CCHE Nyon SA (ex-Suard Architectes SA)

Client

Centre Balexert SA

Typology

Extension

Program

Extension on the Route de Meyrin to accommodate tram users, creation of new commercial surfaces

Floor area (GFA)

48'700 m²

Volume (SIA)

835'000 m³

Realization

CCHE Nyon SA (ex-Suard Architectes SA)

Architecture de CCHE pour l'extension du centre commercial Balexert Suisse
Architecture de CCHE pour l'extension du centre commercial Balexert Suisse
Architecture de CCHE pour l'extension du centre commercial Balexert Suisse
Architecture de CCHE pour l'extension du centre commercial Balexert Suisse
Architecture de CCHE pour l'extension du centre commercial Balexert Suisse
Architecture de CCHE pour l'extension du centre commercial Balexert Suisse
Architecture de CCHE pour l'extension du centre commercial Balexert Suisse
Architecture de CCHE pour l'extension du centre commercial Balexert Suisse
Architecture de CCHE pour l'extension du centre commercial Balexert Suisse
Architecture de CCHE pour l'extension du centre commercial Balexert Suisse
Architecture de CCHE pour l'extension du centre commercial Balexert Suisse
Back to projects