Concours du quartier industriel RAD

Zürich, Oerlikon

Transformation d’un site industriel en un lieu de vie

Le développement de la zone industrielle RAD (Rheinmetall Air Defence) dans le quartier d'Oerlikon à Zürich se poursuit. L'aménagement urbain réagit aux structures orthogonales et de grande taille de l'industrie et se positionne comme un corps de bâtiment allongé en forme de ligne le long de la Gertrud-Kurz-Strasse. La conservation et la réaffectation de la barre existante permettent de loger le programme exigé de manière compacte dans un nouveau bâtiment. La disposition urbaine forme deux typologies d'espaces urbains compréhensibles avec une affectation claire : une ruelle urbaine au nord et un jardin proche de la nature au sud.

Entre l’existant et le nouveau

Le bâtiment existant, classé monument historique, sera transformé en appartements attrayants, qui offriront également une vue sur l'espace vert. Cette réaffectation préserve la valeur historique du bâtiment et l'intègre harmonieusement dans sa nouvelle fonction. À son extrémité Sud-Est s’établiront sur quatre étages des commerces, qui permettront également de couper le bruit de la rue pour les appartements.

Le nouveau bâtiment quant à lui se déploie dans la longueur, aspect recommandé dans des études préliminaires. Les éléments de façades sont un hommage à la halle industrielle, passé marquant des lieux.

Développé par

CCHE Zürich AG

Procédure

Concours en procédure sélective, sur invitation

Maître de l'ouvrage

Mobimo Management AG

Typologie

Quartier d'habitation, transformation

Programme

Ensemble résidentiel et commercial (144 logements dont 60 en propriétés et 84 en locations)

Surface (SBP)

16'000 m2

Volume (SIA)

50'000 m3

Concours d'un quartier industriel RAD de CCHE à Oerlikon

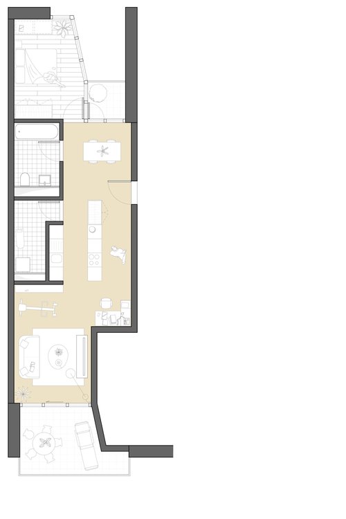
Plan rez-de-chaussée

Qualité de séjour et facilité d’usage

Le jardin central est conçu comme une « oasis verte » proche de la nature et suit le concept du jardin de bienfaisance voisin ; la création d'un « contre-monde vert » par rapport à l'environnement urbain. Le contraste entre ces deux éléments crée un sentiment de retrait (« being away »).Les plantes et les arbres choisis pour aérer le terrain sont principalement indigènes et adaptés au climat afin de contribuer au maximum à la biodiversité locale.

Un autre espace extérieur marquant est la ruelle qui longe le nouveau bâtiment. Elle constitue le lien entre l'environnement industriel et les immeubles d'habitation. Grâce à des zones de repos et de détente ainsi qu'à des espaces verts, elle offre un espace qui favorise les interactions sociales. Son rôle futur est également de créer un lien plus large avec les quartiers environnants.

Concours d'un quartier industriel RAD de CCHE à Oerlikon
Concours d'un quartier industriel RAD de CCHE à Oerlikon
Concours d'un quartier industriel RAD de CCHE à Oerlikon
Concours d'un quartier industriel RAD de CCHE à Oerlikon
Concours d'un quartier industriel RAD de CCHE à Oerlikon
Concours d'un quartier industriel RAD de CCHE à Oerlikon

Plans duplex, Plans d'appartements simples

Des logements aux qualités multiples

Un large éventail d'appartements est proposé dans les deux bâtiments : des logements compacts, traversants et attrayants dans le nouveau bâtiment, des appartements généreux de 1,5 et 2,5 pièces et des duplex de taille supérieure à la moyenne dans la barre. Les typologies se répètent aux différents étages, ce qui permet une meilleure efficacité et économie des installations techniques et une construction rapide. En plus du parc, d’autres espaces extérieurs, privés, sont à disposition des habitantes et habitants ; les balcons, les terrasses et les jardins au rez-de-chaussée.

Le concept énergétique mise sur les énergies renouvelables avec l'utilisation de sondes géothermiques comme moyen de chauffage. L’installation photovoltaïque sur les toits maximise la production d'électricité et alimente efficacement le site en électricité solaire. La possibilité d'une ventilation transversale assure une bonne circulation de l'air et élimine le besoin de systèmes mécaniques.

Une combinaison d'installations solaires et de végétalisation extensive est prévue sur tous les toits plats. Cela a le double avantage de permettre une meilleure retenue des eaux de pluie, ainsi que la création d’ombre par la végétation, qui offre des niches pour les animaux et les plantes. Les revêtements durs au sol possèdent un albédo élevé afin de minimiser l'absorption et l'accumulation de chaleur. Le projet accorde une grande importance à la réduction de l'énergie grise en utilisant des matériaux qui préservent les ressources et en minimisant la part de béton.

Concours d'un quartier industriel RAD de CCHE à Oerlikon

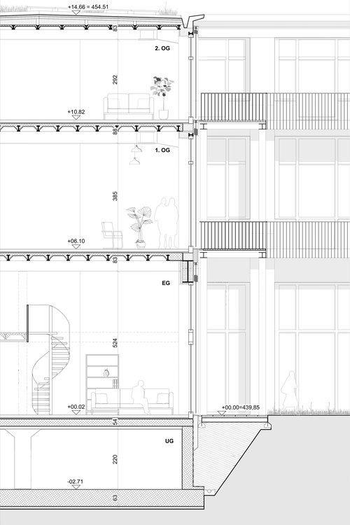
Coupe dans le nouveau bâtiment avec vue sur le bâtiment existant

Concours d'un quartier industriel RAD de CCHE à Oerlikon

Coupe et élévation du bâtiment réhabilité

Retour aux projets