Wettbewerb Industriegebiet RAD

Zürich, Oerlikon

Umwandlung eines Industriegeländes in einen Lebensraum

Die Entwicklung des Industriegebiets RAD (Rheinmetall Air Defence) im Zürcher Stadtteil Oerlikon schreitet voran. Der städtebauliche Entwurf knüpft an die großzügigen und orthogonalen Strukturen der Industriegebäude an und positioniert sich als langgestreckter, linienförmiger Gebäudekörper entlang der Gertrud-Kurz-Straße. Durch die Erhaltung und Umnutzung des bestehenden Gebäudes kann das geforderte Programm kompakt in einem neuen Gebäude untergebracht werden. Die städtebauliche Gestaltung bildet zwei überschaubare Raumtypen mit klaren Funktionen: eine städtische Gasse im Norden und einen naturnahen Garten im Süden.

Zwischen Alt und Neu

Das bestehende denkmalgeschützte Gebäude wird zu attraktiven Wohnungen umgebaut, die auch einen Blick auf die Grünfläche bieten. Diese Umnutzung bewahrt den historischen Wert des Gebäudes und fügt es harmonisch in seine neue Funktion ein. An seinem südöstlichen Ende entstehen auf vier Etagen Geschäfte, die auch die Wohnungen vom Straßenlärm abschirmen.

Der Neubau erstreckt sich, wie in den ersten Entwürfen vorgesehen, über die gesamte Länge des Grundstücks. Die Fassadenelemente sind eine Hommage an die Industriehalle, die Teil der Vergangenheit des Standortes sind.

Entwickelt von

CCHE Zürich AG

Verfahren

Auswahlverfahren auf Einladung

Bauherr

Mobimo Management AG

Typologie

Wohngebiet, Umbau

Programm

Wohn- und Geschäftskomplex (144 Wohnungen, davon 60 Eigentumswohnungen und 84 Mietwohnungen)

Geschossfläche (BGF)

16'000 m2

Volumen (SIA)

50'000 m3

Concours d'un quartier industriel RAD de CCHE à Oerlikon

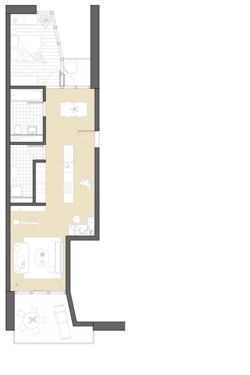
Grundrisse Erdgeschoss

Wohnqualität und Benutzerfreundlichkeit

Der zentrale Garten ist als "grüne Oase" inmitten der Natur angelegt und folgt dem Konzept des von Nachbarn gemeinsam genutzten Gartens, wodurch ein "grüner Gegenpol" zur urbanen Umgebung entsteht. Der Kontrast zwischen diesen beiden Elementen schafft ein Gefühl der Abgeschiedenheit ("Rückzugsort"). Die Pflanzen und Bäume, die zur Auflockerung des Geländes ausgewählt wurden, sind überwiegend einheimisch und an das Klima angepasst, um einen maximalen Beitrag zur lokalen Biodiversität zu leisten.

Ein weiterer markanter Außenbereich ist die Gasse, die entlang des neuen Gebäudes verläuft. Sie bildet die Verbindung zwischen der industriellen Umgebung und den Wohngebäuden. Mit Ruhe- und Erholungszonen sowie Grünflächen bietet sie Raum für soziale Interaktion. In Zukunft soll sie auch eine breitere Verbindung zu den umliegenden Stadtvierteln herstellen.

Concours d'un quartier industriel RAD de CCHE à Oerlikon
Concours d'un quartier industriel RAD de CCHE à Oerlikon
Concours d'un quartier industriel RAD de CCHE à Oerlikon
Concours d'un quartier industriel RAD de CCHE à Oerlikon
Concours d'un quartier industriel RAD de CCHE à Oerlikon
Concours d'un quartier industriel RAD de CCHE à Oerlikon

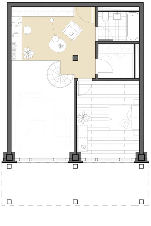
Maisonette-Grundrisse, einfache Wohnungsgrundrisse

Wohnungen mit vielen Vorzügen

In beiden Gebäuden steht eine große Auswahl von Wohnungen zur Verfügung: kompakte, attraktive Wohnungen mit zwei Ausrichtungen im neuen Gebäude, großzügige 1,5- und 2,5-Zimmer-Wohnungen und überdurchschnittlich große Maisonette-Wohnungen im Haupthaus. Die Grundrisstypen wiederholen sich auf den verschiedenen Etagen, was eine effiziente und wirtschaftliche technische Ausstattung sowie eine schnelle Bauweise ermöglicht. Neben dem Park stehen den Bewohnerinnen und Bewohnern weitere private Außenbereiche zur Verfügung: Balkone, Terrassen und Gärten im Erdgeschoss.

Das Energiekonzept setzt auf erneuerbare Energien mit Erdwärmesonden als Heizmittel. Die Photovoltaikanlage auf den Dächern maximiert die Stromproduktion und versorgt das Gelände effizient mit Solarstrom. Die Möglichkeit einer

Auf allen Flachdächern ist eine Kombination aus Solaranlagen und extensiver Begrünung vorgesehen. Dies hat den doppelten Vorteil, dass Regenwasser besser zurückgehalten wird und die Vegetation Schatten spendet, der Lebensraum für Tiere und Pflanzen bietet. Die harten Bodenbeläge haben einen hohen Albedo-Wert, um die Wärmeaufnahme und -speicherung zu minimieren. Bei dem Projekt wurde großer Wert auf die Reduzierung der grauen Energie gelegt, indem ressourcenschonende Materialien verwendet und der Einsatz von Beton minimiert wurde.

Concours d'un quartier industriel RAD de CCHE à Oerlikon

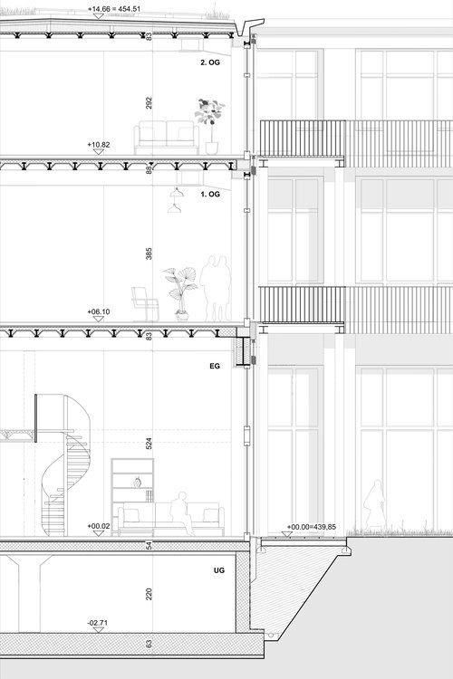
Schnitt durch den Neubau mit Blick auf das bestehende Gebäude

Concours d'un quartier industriel RAD de CCHE à Oerlikon

Schnitt und Aufriss des sanierten Gebäudes

Zurück zu Projekte