Chancy 59

Lancy

Le quartier dans lequel se situe le projet est un secteur mixte qui s’est fortement développé grâce, notamment, à l’optimisation des transports publics et l’arrivée du tram sur la route de Chancy.

Le site de Chancy 59 actuellement très fermé, peu accessible et très minéral ne répond plus aux problématiques urbaines de mobilités douce, de perméabilité et d'espaces urbains public. CCHE a été mandaté pour requalifier et redéfinir ces espaces extérieurs afin d'apporte une réponse urbaine en lien avec le périmètre au sens large et le développement du quartier.

La stratégie de développement est de proposer une perméabilité au site offrant ainsi au quartier de nouveaux espaces publics, de nouveaux commerces et activités et de faciliter la mobilité douce. De plus, le projet anticipe sur le PLQ en développement jouxtant la parcelle afin de lier ses futures voies de mobilité et de créer une continuité des différents chemins piétons et pistes cyclables vers le tram. 

Année

En cours

Développé par

CCHE Genève SA

Maître de l'ouvrage

Swiss Prime Site Immobilien AG

Programme

Transformation et réaménagements des espaces extérieurs

Surface (SBP)

7'235 m2

Réalisation

CCHE Genève SA

Architecture de CCHE pour le quartier de Chancy 59 à Genève Suisse
Architecture de CCHE pour le quartier de Chancy 59 à Genève Suisse
Architecture de CCHE pour le quartier de Chancy 59 à Genève Suisse

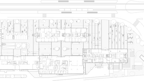
Plans végétation rez-de-chaussée, 1:500

Retour aux projets