Chancy 59

Lancy

Der Stadtteil, in dem sich das Projekt befindet, ist ein gemischter Sektor, der sich vor allem dank der Optimierung des öffentlichen Verkehrs und der Inbetriebnahme der Straßenbahn auf der Route de Chancy stark entwickelt hat.

Der Standort Chancy 59, der derzeit sehr verschlossen, wenig zugänglich und sehr mineralisch ist, entspricht nicht mehr den städtischen Problemen der sanften Mobilität, der Permeabilität und der öffentlichen Stadträume. Das CCHE wurde beauftragt, diese Außenflächen neu zu qualifizieren und neu zu definieren, um eine städtebauliche Antwort zu geben, die mit dem weiteren Umkreis und der Entwicklung des Viertels verbunden ist.

Die Entwicklungsstrategie zielt darauf ab, den Standort permeabel zu gestalten und so dem Stadtteil neue öffentliche Räume, neue Geschäfte und Aktivitäten zur Verfügung zu stellen und eine sanfte Mobilität zu ermöglichen. Darüber hinaus nimmt das Projekt den an das Grundstück angrenzenden, in Entwicklung befindlichen Bebauungsplan vorweg, um seine zukünftigen Mobilitätswege zu verbinden und eine Kontinuität der verschiedenen Fußgänger- und Radwege zur Straßenbahn zu schaffen. 

Jahr

Im Bau

Entwickelt von

CCHE Genève SA

Bauherr

Swiss Prime Site Immobilien AG

Programm

Umgestaltung und Neugestaltung von Außenbereichen

Geschossfläche (BGF)

7.235 qm

Realisierung

CCHE Genève SA

Architecture de CCHE pour le quartier de Chancy 59 à Genève Suisse
Architecture de CCHE pour le quartier de Chancy 59 à Genève Suisse
Architecture de CCHE pour le quartier de Chancy 59 à Genève Suisse

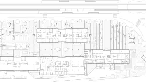
Vegetationspläne Erdgeschoss, 1:500

Zurück zu Projekte