Bourg 8

Lausanne

Transformations intérieures et extérieures de deux bâtiments classés à la rue de Bourg à Lausanne

Année

2017

Développé par

CCHE Lausanne SA

Maître de l'ouvrage

Newport Bau AG

Typologie

Transformation

Programme

Transformations intérieures et extérieures des deux bâtiments

Surface (SBP)

656 m²

Volume (SIA)

5'731 m³

Transformation et Rénovation de CCHE d'un bâtiment à la rue de Bourg à Lausanne Suisse
Transformation et Rénovation de CCHE d'un bâtiment à la rue de Bourg à Lausanne Suisse

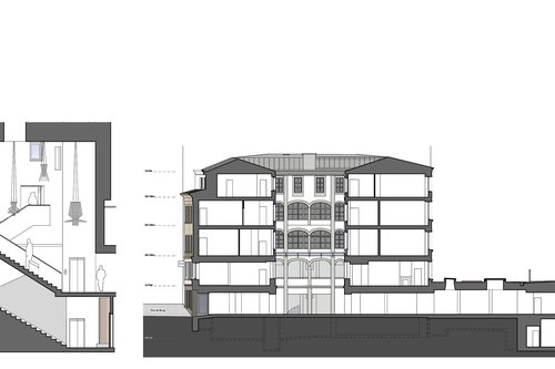
À l’origine, le bâtiment existant à la rue de Bourg 8 était constitué de deux petits bâtiments de 3 niveaux, réunis en 1637. En 1746, ils ont été rehaussés d’un étage et entièrement réparés.

La façade sur rue, comme l'intérieur, a subi depuis le XVIIIème siècle au rez de chaussée et 1er étage de nombreuses modifications, en particulier la réalisation d'une dalle qui obstrue la cour intérieure et la création de 2 commerces de plein pied sur étage.

Le rez de chaussée de la façade nord desservant les entrées a donc été remanié totalement avec un matériau contemporain se fondant harmonieusement avec la façade historique préservée aux étages supérieurs.

Transformation et Rénovation de CCHE d'un bâtiment à la rue de Bourg à Lausanne Suisse

L'escalier central historique et ses paliers ont été restaurés, l'ancien ascenseur a été remplacé et déplacé pour redonner une meilleure lecture de la verticalité.

Transformation et Rénovation de CCHE d'un bâtiment à la rue de Bourg à Lausanne Suisse

L'ambiance intérieure épurée et lumineuse redonne vie aux parties conservées et restaurées, les nouvelles interventions sobres telles que les revêtements, garde-corps et fenêtres respectent l'esprit du bâtiment et se marient si bien à l'existant qu'il est difficile au visiteur de les dissocier des parties préservées.

La réorganisation des espaces et la redéfinition des circulations a été nécessaire pour créer une grande surface commerciale de 630m2 sur 2 niveaux tout en maintenant et redonnant au maximum le caractère originel du bâtiment. Ainsi, une nouvelle entrée propre a été dédiée à l'accès à l'unique commerce et aux locaux des étages supérieurs, avec un nouveau hall et son escalier sur 2 niveaux liés à l'escalier d'origine.

La refonte des espaces par la reconstruction totale des annexes sud sans valeur historique, la restructuration des altitudes du rez et du 1er étage en lien avec la forte pente de la rue de Bourg, et la mise en oeuvre des nouvelles techniques CVSE a engendré des interventions structurelles lourdes.

Transformation et Rénovation de CCHE d'un bâtiment à la rue de Bourg à Lausanne Suisse
Transformation et Rénovation de CCHE d'un bâtiment à la rue de Bourg à Lausanne Suisse
Retour aux projets