Les Planches

Epalinges

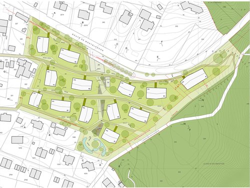
The main goal of this invitation-only competition, organised by GeFiswiss, is to propose a new district in Epalinges, a multi-family housing based on a harmonious relationship with the environment and adapting to the futur residents, both in terms of form of implantation and the determination of outdoor spaces.

Year

2012 - Ongoing

Mention

1st prize

Developed by

CCHE Lausanne SA

Client

GeFIswiss SA

Program

Competition, preparation of the master plan and monitoring of the neighbourhood plan, preliminary design studies, design of the work, preparation of tender plans, execution to be defined

Architecture de CCHE pour le quartier Les Planches Suisse
Architecture de CCHE pour le quartier Les Planches Suisse
Architecture de CCHE pour le quartier Les Planches Suisse
Architecture de CCHE pour le quartier Les Planches Suisse
Architecture de CCHE pour le quartier Les Planches Suisse
Architecture de CCHE pour le quartier Les Planches Suisse

Section C 1/200

Architecture de CCHE pour le quartier Les Planches Suisse

Section D 1/200

Architecture de CCHE pour le quartier Les Planches Suisse

Site plan

Back to projects