The Hive 8

Meyrin-Satigny

Développement d'un bâtiment administratif sur le campus The Hive pour le nouveau siège et un centre de production du groupe suisse de composants électriques LEM.

Leader sur le marché des solutions innovantes et de haute qualité pour la mesure des paramètres électriques, LEM a choisi le campus The Hive, dédié aux entreprises du secteur technologique à forte valeur ajoutée, pour accueillir ses activités de recherche et développement et une unité de production. Installé dans le bâtiment Hive 08, ce nouvel ensemble s’inscrit parfaitement dans l’esprit du campus The Hive. 

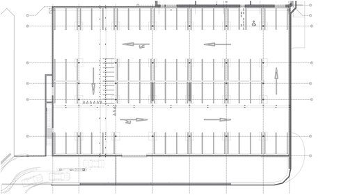
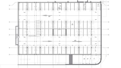
Les fonctions principales sont clairement exprimées par la matérialité de trois volumes superposés totalisant plus de 7'500 m2 de SBP. Les deux niveaux inférieurs, installés dans un socle minéral, sont consacrés à l’industrie. La façade est en éléments de béton préfabriqués (éléments sandwich) et les entrées sont marquées en creux.

Année

2022

Développé par

CCHE Lausanne SA

Maître de l'ouvrage

HIAG

Programme

3 étages administratif, 2 étages industries, 1 terrasse en toiture

Surface (SBP)

7'740 m²

Volume (SIA)

48'760 m³

Réalisation

CCHE Lausanne SA

Signalétique

CCHE Design

Collaboration

Aménagements intérieurs: Itten+Brechbühl SA

Architecture et réalisation de CCHE du bâtiment administratif The Hive 8  Suisse
Architecture et réalisation de CCHE du bâtiment administratif The Hive 8  Suisse

Au-dessus, trois niveaux de surfaces de bureaux sont aménagés dans une boîte en verre. Cette façade tout en transparence dialogue avec la façade minérale des niveaux inférieurs ainsi qu’avec les bâtiments voisins. La couleur bronze des menuiseries, l’absence de montants dans les angles (verres collés) et la variation des tailles des modules ajoutent élégance et rythme à la composition. Un couronnement en métal intègre d’une part une deuxième terrasse avec vue sur le Jura et d’autre part les zones techniques.

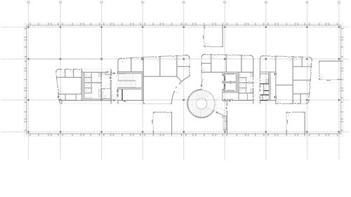
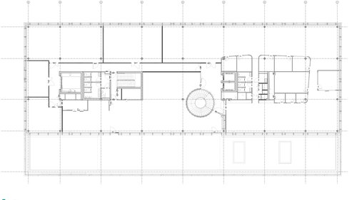
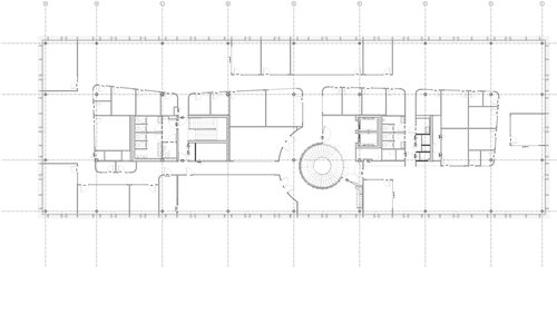
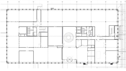
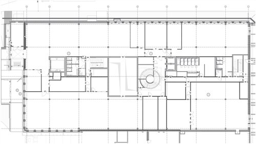
Les étages s’appuient sur une typologie usuelle; un noyau central de services et communs laisse le plan libre à l’aménagement de bureaux (open space, bureaux individuels, salles de conférence, box d’isolement, etc.) correspondant aux souhaits et exigences du locataire.

Architecture et réalisation de CCHE du bâtiment administratif The Hive 8  Suisse
Architecture et réalisation de CCHE du bâtiment administratif The Hive 8  Suisse
Architecture et réalisation de CCHE du bâtiment administratif The Hive 8  Suisse
Architecture et réalisation de CCHE du bâtiment administratif The Hive 8  Suisse

Le bâtiment est certifié THPE. Il est raccordé sur la boucle énergétique du campus et utilise les rejets de chaleur du data center voisin. Les besoins de froid liés au process industriel imposent l’installation d’aérocondenseurs. Afin de juguler la présence de nombreux éléments techniques, monoblocs, panneaux solaires et autres évacuations, l’ordre et l’habillage de la toiture sont particulièrement soignés.

Les aménagements extérieurs s’inscrivent dans le concept du campus: des arbres en pleine terre, des arbres en bacs, la suppression de parkings de surface et les liaisons piétonnes dessinent un ensemble harmonieux.

Architecture et réalisation de CCHE du bâtiment administratif The Hive 8  Suisse
Architecture et réalisation de CCHE du bâtiment administratif The Hive 8  Suisse

Un escalier hélicoïdal, dont les marches en chêne dialoguent avec le garde-corps en acier peint, franchit les étages de différentes hauteurs. Développé grâce aux nouveaux outils de conception paramétrique, son modèle architectural a pratiquement pu être utilisé tel quel par le constructeur. Les différents éléments ont été assemblés en usine par demi-volées et glissés dans le bâtiment par la grue à travers la trémie de toiture. Un élément d’accroche massif est intégré aux dalles sans qu’aucun autre appui soit nécessaire. L’ensemble est éclairé par un lustre et ceint par une cage en verre qui répond aux normes de sécurité incendie, tout en ajoutant de la légèreté à cette pièce magistrale.

Voir la série "L'exploration des formes dans l'architecture"

Architecture et réalisation de CCHE du bâtiment administratif The Hive 8  Suisse
Architecture et réalisation de CCHE du bâtiment administratif The Hive 8  Suisse
Architecture et réalisation de CCHE du bâtiment administratif The Hive 8  Suisse
Architecture et réalisation de CCHE du bâtiment administratif The Hive 8  Suisse
Architecture et réalisation de CCHE du bâtiment administratif The Hive 8  Suisse
Architecture et réalisation de CCHE du bâtiment administratif The Hive 8  Suisse
Architecture et réalisation de CCHE du bâtiment administratif The Hive 8  Suisse
Architecture et réalisation de CCHE du bâtiment administratif The Hive 8  Suisse
Architecture et réalisation de CCHE du bâtiment administratif The Hive 8  Suisse
Architecture et réalisation de CCHE du bâtiment administratif The Hive 8  Suisse

Plans

Architecture et réalisation de CCHE du bâtiment administratif The Hive 8  Suisse
Architecture et réalisation de CCHE du bâtiment administratif The Hive 8  Suisse
Architecture et réalisation de CCHE du bâtiment administratif The Hive 8  Suisse
Architecture et réalisation de CCHE du bâtiment administratif The Hive 8  Suisse
Architecture et réalisation de CCHE du bâtiment administratif The Hive 8  Suisse
Architecture et réalisation de CCHE du bâtiment administratif The Hive 8  Suisse
Architecture et réalisation de CCHE du bâtiment administratif The Hive 8  Suisse
Architecture et réalisation de CCHE du bâtiment administratif The Hive 8  Suisse
Architecture et réalisation de CCHE du bâtiment administratif The Hive 8  Suisse

Photos du chantier

Projet d'architecture du bâtiment

Architecture de CCHE du bâtiment administratif LEM Suisse
Architecture de CCHE du bâtiment administratif LEM Suisse
Architecture de CCHE du bâtiment administratif LEM Suisse
Architecture de CCHE bâtiment admininstratif LEM à Meyrin
Architecture de CCHE bâtiment admininstratif LEM à Meyrin
Architecture de CCHE bâtiment admininstratif LEM à Meyrin
Retour aux projets