The Hive 8

Meyrin-Satigny

Entwicklung eines Verwaltungsgebäudes für den Schweizer Elektrokomponenten-Konzern LEM, der seinen Hauptsitz nach Genf verlegt.

LEM ist Marktführer im Bereich innovativer und qualitativ hochwertiger Lösungen für die Messung elektrischer Parameter. LEM hat sich für den Campus The Hive entschieden, der für Unternehmen im Bereich der Technologie mit hoher Wertschöpfung bestimmt ist, um seine Forschungs- und Entwicklungsaktivitäten sowie eine Produktionseinheit unterzubringen. Der neue Komplex ist im Gebäude Hive 08 untergebracht und fügt sich perfekt in den Geist des Campus The Hive ein.

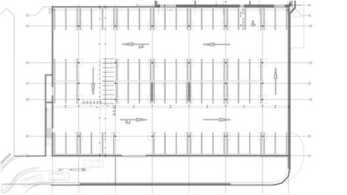
Die Hauptfunktionen werden durch die Materialität von drei übereinander liegenden Volumen mit einer Gesamtfläche von über 7.500 m2 SBP klar zum Ausdruck gebracht. Die beiden unteren Ebenen, die in einem mineralischen Sockel installiert sind, sind der Industrie gewidmet. Die Fassade besteht aus vorgefertigten Betonelementen (Sandwichelementen) und die Eingänge sind mit Vertiefungen markiert.

Jahr

2022

Entwickelt von

CCHE Lausanne SA

Bauherr

HIAG

Programm

3 Verwaltungsgeschosse, 2 Industriegeschosse, 1 Dachterrasse

Geschossfläche (BGF)

7.740 qm

Volumen (SIA)

48.760 m³

Realisierung

CCHE Lausanne SA

Beschilderung

CCHE Design

Zusammenarbeit

Innenarchitektur: Itten+Brechbühl SA

Architecture et réalisation de CCHE du bâtiment administratif The Hive 8  Suisse
Architecture et réalisation de CCHE du bâtiment administratif The Hive 8  Suisse

Darüber befinden sich drei Ebenen mit Büroflächen, die in einer Glasbox untergebracht sind. Diese transparente Fassade steht im Dialog mit der mineralischen Fassade der darunter liegenden Ebenen sowie mit den Nachbargebäuden. Die Bronzefarbe der Fenster und Türen, das Fehlen von Pfosten in den Ecken (geklebtes Glas) und die unterschiedlichen Größen der Module verleihen der Komposition Eleganz und Rhythmus. Eine Krone aus Metall integriert einerseits eine zweite Terrasse mit Blick auf den Jura und andererseits die technischen Bereiche.

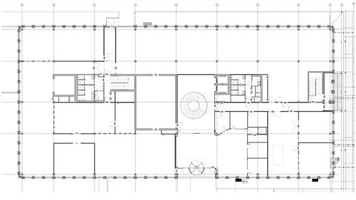
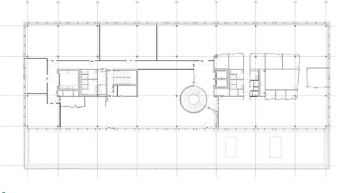
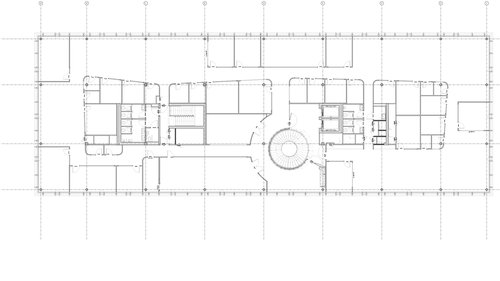
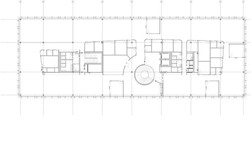
Die Stockwerke basieren auf einer üblichen Typologie; ein zentraler Kern für Dienstleistungen und Gemeinschaftsräume lässt Raum für die Einrichtung von Büros (Open Space, Einzelbüros, Konferenzräume, Isolationsboxen usw.), die den Wünschen und Anforderungen des Mieters entsprechen.

Architecture et réalisation de CCHE du bâtiment administratif The Hive 8  Suisse
Architecture et réalisation de CCHE du bâtiment administratif The Hive 8  Suisse
Architecture et réalisation de CCHE du bâtiment administratif The Hive 8  Suisse
Architecture et réalisation de CCHE du bâtiment administratif The Hive 8  Suisse

Das Gebäude ist THPE-zertifiziert. Es ist an den Energiekreislauf des Campus angeschlossen und nutzt die Abwärme des benachbarten Rechenzentrums. Der Kältebedarf des Industrieprozesses erfordert die Installation von Luftkondensatoren. Um die zahlreichen technischen Elemente, Monoblöcke, Solarpaneele und andere Abflüsse einzudämmen, wurde besonders auf die Ordnung und die Verkleidung des Daches geachtet.

Die Außenanlagen fügen sich in das Konzept des Campus ein: Freilandbäume, Bäume in Kübeln, der Verzicht auf oberirdische Parkplätze und die Fußgängerverbindungen bilden ein harmonisches Ganzes.

Architecture et réalisation de CCHE du bâtiment administratif The Hive 8  Suisse
Architecture et réalisation de CCHE du bâtiment administratif The Hive 8  Suisse

Eine Wendeltreppe, deren Eichenstufen mit dem Geländer aus lackiertem Stahl dialogisieren, überwindet die unterschiedlich hohen Stockwerke. Ihr architektonisches Modell wurde mithilfe neuer parametrischer Entwurfstools entwickelt und konnte vom Bauherrn praktisch unverändert verwendet werden. Die einzelnen Elemente wurden in der Fabrik in Halbspannen zusammengebaut und mit dem Kran durch den Dachtrichter in das Gebäude geschoben. Ein massives Aufhänge-Element ist in die Bodenplatten integriert, ohne dass eine weitere Abstützung erforderlich ist. Das Ganze wird von einem Kronleuchter beleuchtet und von einem Glaskäfig umschlossen, der die Brandschutzvorschriften erfüllt und diesem meisterhaften Stück gleichzeitig Leichtigkeit verleiht.

Siehe die Serie "Die Erforschung der Formen in der Architektur".

Architecture et réalisation de CCHE du bâtiment administratif The Hive 8  Suisse
Architecture et réalisation de CCHE du bâtiment administratif The Hive 8  Suisse
Architecture et réalisation de CCHE du bâtiment administratif The Hive 8  Suisse
Architecture et réalisation de CCHE du bâtiment administratif The Hive 8  Suisse
Architecture et réalisation de CCHE du bâtiment administratif The Hive 8  Suisse
Architecture et réalisation de CCHE du bâtiment administratif The Hive 8  Suisse
Architecture et réalisation de CCHE du bâtiment administratif The Hive 8  Suisse
Architecture et réalisation de CCHE du bâtiment administratif The Hive 8  Suisse
Architecture et réalisation de CCHE du bâtiment administratif The Hive 8  Suisse
Architecture et réalisation de CCHE du bâtiment administratif The Hive 8  Suisse

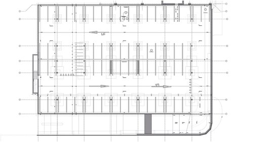
Pläne

Architecture et réalisation de CCHE du bâtiment administratif The Hive 8  Suisse
Architecture et réalisation de CCHE du bâtiment administratif The Hive 8  Suisse
Architecture et réalisation de CCHE du bâtiment administratif The Hive 8  Suisse
Architecture et réalisation de CCHE du bâtiment administratif The Hive 8  Suisse
Architecture et réalisation de CCHE du bâtiment administratif The Hive 8  Suisse
Architecture et réalisation de CCHE du bâtiment administratif The Hive 8  Suisse
Architecture et réalisation de CCHE du bâtiment administratif The Hive 8  Suisse
Architecture et réalisation de CCHE du bâtiment administratif The Hive 8  Suisse
Architecture et réalisation de CCHE du bâtiment administratif The Hive 8  Suisse

Fotos von der Baustelle

Architecture et réalisation de CCHE du bâtiment administratif The Hive 8  Suisse
Architecture et réalisation de CCHE du bâtiment administratif The Hive 8  Suisse

Fotos vom 16.03.2021 - Sehen Sie sich die Neuigkeiten auf der Baustelle The Hive 8 (August 2021) immersiv an.

Entwurf für die Architektur des Gebäudes

Architecture de CCHE du bâtiment administratif LEM Suisse
Architecture de CCHE du bâtiment administratif LEM Suisse
Architecture de CCHE du bâtiment administratif LEM Suisse
Architecture de CCHE bâtiment admininstratif LEM à Meyrin
Architecture de CCHE bâtiment admininstratif LEM à Meyrin
Architecture de CCHE bâtiment admininstratif LEM à Meyrin
Zurück zu Projekte