Siège Suisse DOKA

Niederhasli (ZH)

Construction d'un bâtiment administratif pour accueillir le siège suisse de la société DOKA dans la zone industrielle de Niederhasli.

Première pièce de référence du quartier, ce bâtiment s’inscrit dans le cadre du développement du périmètre de la gare de Niederhasli. Il devra créer le lien entre la zone industrielle et ses halles de production et stockage et un futur quartier résidentiel.

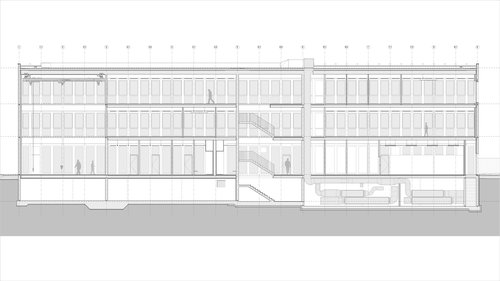
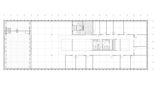
Conçu par CCHE, ce bâtiment offre à ses utilisateurs deux plateaux de bureaux (1e et 2e étage) ainsi que des parties communes et publiques au rez-de-chaussée avec un restaurant pour l’ensemble des collaborateurs de DOKA, un centre de formation équipé d’une salle de conférence ainsi que la halle d’exposition ouverte sur les trois niveaux.

La cinquième façade en toiture est entièrement équipée de panneaux photovoltaïques afin de couvrir les besoins en énergie du bâtiment et d’une partie du site de production de DOKA.

Année

2021

Développé par

CCHE Nyon SA
CCHE Lausanne SA

Maître de l'ouvrage

HIAG Immobilien Schweiz AG

Typologie

Bureau, restaurant et salle de conférence

Procédure

Appel d'offres

Réalisation

W. Schmid AG

Architecture de CCHE pour le siège suisse Doka
Architecture de CCHE pour le siège suisse Doka

A l’image des poutrelles de coffrage que DOKA a mis au point, l’ossature du bâtiment administratif reprend ce concept. Nous avons conçu le bâtiment avec des lames extérieures verticales sur lesquelles s’accrochent les deux façades longitudinales, totalement vitrées afin d’offrir le lien entre résidence et industrie. Pour accentuer cette image, les deux façades pignons ainsi que les voiles porteurs transversaux intérieurs sont réalisés en béton apparent perforé de façon aléatoire.

Architecture de CCHE pour le siège suisse Doka
Architecture de CCHE pour le siège suisse Doka
Architecture de CCHE pour le siège suisse Doka
Architecture de CCHE pour le siège suisse Doka
Architecture de CCHE pour le siège suisse Doka
Architecture de CCHE pour le siège suisse Doka
Architecture de CCHE pour le siège suisse Doka
Architecture de CCHE pour le siège suisse Doka
Architecture de CCHE pour le siège suisse Doka
Architecture de CCHE pour le siège suisse Doka
Architecture de CCHE pour le siège suisse Doka
Architecture de CCHE pour le siège suisse Doka
Architecture de CCHE pour le siège suisse Doka
Architecture de CCHE pour le siège suisse Doka
Architecture de CCHE pour le siège suisse Doka
Architecture de CCHE pour le siège suisse Doka
Architecture de CCHE pour le siège suisse Doka
Architecture de CCHE pour le siège suisse Doka
Architecture de CCHE pour le siège suisse Doka
Architecture de CCHE pour le siège suisse Doka
Architecture de CCHE pour le siège suisse Doka
Architecture de CCHE pour le siège suisse Doka
Architecture de CCHE pour le siège suisse Doka
Architecture de CCHE pour le siège suisse Doka
Architecture de CCHE pour le siège suisse Doka

Coupe longitudinale, transversale, façade principale, façade pignon, plan étage 2 et plan rez

Images 3D du projet

Architecture de CCHE pour le siège Suisse Doka
Architecture de CCHE pour le siège Suisse Doka

Concept de façades

Le concept initial, se base sur les ossatures Doka (poutrelles) posées en vertical afin de créer le squelette du bâtiment.
Préfabrication des poteaux en béton extérieurs posés avant la mise en place des dalles afin d'offrir un peu de dynamisme les poteaux sont tronqués sur la diagonale qui marque l'entrée.

Projet d'architecture de CCHE pour le siège Suisse Doka
Projet d'architecture de CCHE pour le siège Suisse Doka
Projet : Siège Suisse DOKA - animation
Projet d'architecture de CCHE pour le siège Suisse Doka
Projet d'architecture de CCHE pour le siège Suisse Doka
Retour aux projets